道路に面した1階の居酒屋居抜き店舗のご案内です。

ゲスト

営業時間:9:30~18:30(土日・祝日を除く)

ゲスト

道路に面した1階の居酒屋居抜き店舗のご案内です。

居抜き市場トップ 居抜き物件、貸店舗を探す 東急東横線 , 川崎市中原区 道路に面した1階の居酒屋居抜き店舗情報

東急東横線

新丸子駅

徒歩5

所在地

川崎市中原区上丸子八幡町・・・詳細は

居酒屋の居抜き物件の内装
居酒屋の居抜き物件の内装

ログイン後に

物件情報の全てがご覧いただけます。

会員登録(無料)
居酒屋の居抜き物件の厨房

ログイン後に

物件情報の全てがご覧いただけます。

会員登録(無料)
新丸子の居抜き店舗の内装

ログイン後に

物件情報の全てがご覧いただけます。

会員登録(無料)
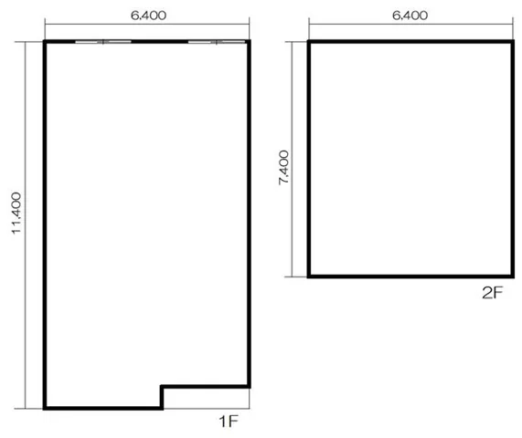
居酒屋の居抜き物件の平面図

ログイン後に

物件情報の全てがご覧いただけます。

会員登録(無料)
新丸子の居酒屋居抜きの外観

ログイン後に

物件情報の全てがご覧いただけます。

会員登録(無料)
居酒屋の居抜き物件の内装
居酒屋の居抜き物件の内装
居酒屋の居抜き物件の厨房
新丸子の居抜き店舗の内装
居酒屋の居抜き物件の平面図
新丸子の居酒屋居抜きの外観
賃料

440,000円(税込)

階数/面積

1F~2F / 35.9坪 (118.7㎡)

敷金・保証金

10ヶ月分

造作代金

無償譲渡

飲食条件

飲食可

物件タイプ/現業態

居抜き / 居酒屋

※会員限定の
情報
ございます。

会員限定の情報がございます。

会員登録(無料)をしていただくと、 物件詳細、物件資料のダウンロード、地図での立地確認など 会員限定の公開情報を閲覧・取得できるようになります。

会員登録(無料)
  • 路面店

東急東横線『新丸子駅』徒歩5分、居酒屋や小料理屋等におすすめな居抜き物件のご紹介です。駅東口からまっすぐ進むと現れる八幡町共進会沿いで、視認性良好です。机やいすなど残置物ございます。各種重飲食ご相談可能!是非一度ご内見ください。

物件概要

会員登録(無料)をすることで
物件情報の全てがご覧いただけます。

会員登録(無料)をしていただくと、他社には出回っていない物件情報の収集、
非会員の方には閲覧できない詳細情報、物件資料のダウンロード、
地図での立地確認など会員限定公開情報を閲覧・取得できるようになります。

会員登録(無料)

地図

会員登録後にご覧いただけます。

会員登録(無料)
×
区分
新着・未公開物件情報

登録で 会員規約プライバシーポリシー に同意したものとします。

※必須

会員登録(無料)
物件詳細や公開情報がご覧になれます!