小伝馬町駅徒歩4分の自由に造作が可能なスケルトン物件のご案内です。

ゲスト

営業時間:9:30~18:30(土日・祝日を除く)

ゲスト

小伝馬町駅徒歩4分の自由に造作が可能なスケルトン物件のご案内です。

居抜き市場トップ 居抜き物件、貸店舗を探す 東京メトロ日比谷線 , 千代田区 小伝馬町駅徒歩4分の自由に造作が可能なスケルトン物件詳細

東京メトロ日比谷線

小伝馬町駅

徒歩4

所在地

千代田区岩本町・・・詳細は

小伝馬町のスケルトン物件の外観
貸店舗(スケルトン)の内装

ログイン後に

物件情報の全てがご覧いただけます。

会員登録(無料)
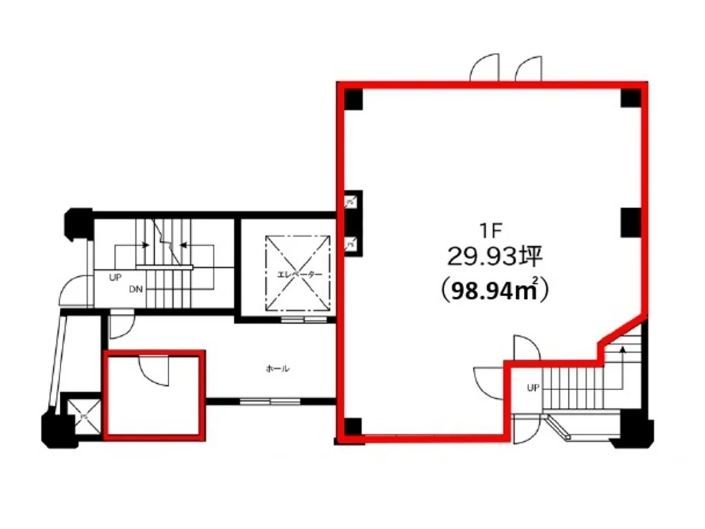
小伝馬町のスケルトン物件の平面図

ログイン後に

物件情報の全てがご覧いただけます。

会員登録(無料)
小伝馬町のスケルトン物件の外観
貸店舗(スケルトン)の内装
小伝馬町のスケルトン物件の平面図
賃料

592,614円(税込)

階数/面積

1F / 29.92坪 (98.94㎡)

敷金・保証金

12ヶ月分

飲食条件

飲食可

物件タイプ/現業態

スケルトン

※会員限定の
情報
ございます。

会員限定の情報がございます。

会員登録(無料)をしていただくと、 物件詳細、物件資料のダウンロード、地図での立地確認など 会員限定の公開情報を閲覧・取得できるようになります。

会員登録(無料)

日比谷線『小伝馬町駅』徒歩4分、飲食店ご相談可能な貸店舗のご案内です。銀座線『神田駅』からも徒歩7分。「神田金物通り」沿いで、交差点の角地1階。視認性良好です!前テナントはコーヒーショップのチェーン店。天井高4.1メートルで開放感あります。重飲食は不可となっておりますが、業種等お気軽にお問い合わせください。

物件概要

会員登録(無料)をすることで
物件情報の全てがご覧いただけます。

会員登録(無料)をしていただくと、他社には出回っていない物件情報の収集、
非会員の方には閲覧できない詳細情報、物件資料のダウンロード、
地図での立地確認など会員限定公開情報を閲覧・取得できるようになります。

会員登録(無料)

地図

会員登録後にご覧いただけます。

会員登録(無料)
×
区分
新着・未公開物件情報

登録で 会員規約プライバシーポリシー に同意したものとします。

※必須

会員登録(無料)
物件詳細や公開情報がご覧になれます!