新宿区西新宿にある7階の医院居抜き物件のご案内です。

ゲスト

営業時間:9:30~18:30(土日・祝日を除く)

ゲスト

新宿区西新宿にある7階の医院居抜き物件のご案内です。

居抜き市場トップ 居抜き物件、貸店舗を探す JR山手線 , 新宿区 新宿区西新宿にある7階の医院居抜き物件詳細

JR山手線

新宿駅

徒歩2

所在地

新宿区西新宿・・・詳細は

医院の居抜き物件の外観
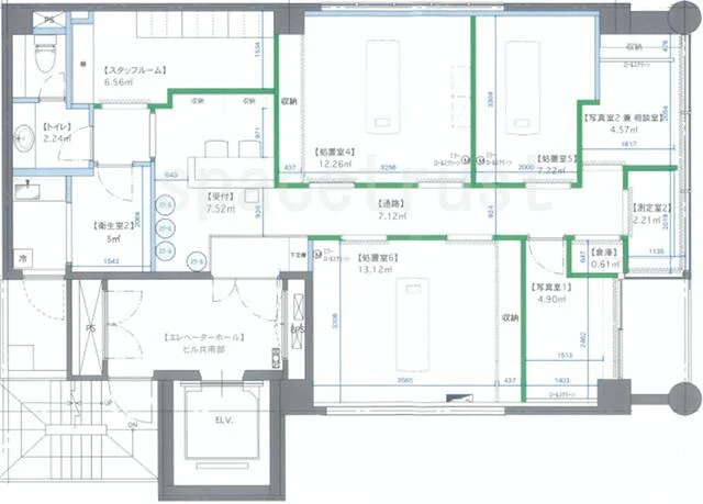
新宿の医院居抜きの平面図

ログイン後に

物件情報の全てがご覧いただけます。

会員登録(無料)
医院の居抜き物件の内装

ログイン後に

物件情報の全てがご覧いただけます。

会員登録(無料)
新宿の医院居抜きの内装

ログイン後に

物件情報の全てがご覧いただけます。

会員登録(無料)
医院の居抜き物件の外観
新宿の医院居抜きの平面図
医院の居抜き物件の内装
新宿の医院居抜きの内装
賃料

1,265,440円(税込)

階数/面積

7F / 28.76坪 (95.08㎡)

敷金・保証金

6ヶ月分

造作代金

1,265,440円(税込)

飲食条件

飲食不可

物件タイプ/現業態

居抜き / 医院

※会員限定の
情報
ございます。

会員限定の情報がございます。

会員登録(無料)をしていただくと、 物件詳細、物件資料のダウンロード、地図での立地確認など 会員限定の公開情報を閲覧・取得できるようになります。

会員登録(無料)

【旧青梅街道】JR『新宿駅』徒歩2分、美容クリニック居抜き物件のご案内です。クリニック等サービス店舗に最適!エレベーターございます。諸条件等、お気軽にお問合せください。

物件概要

会員登録(無料)をすることで
物件情報の全てがご覧いただけます。

会員登録(無料)をしていただくと、他社には出回っていない物件情報の収集、
非会員の方には閲覧できない詳細情報、物件資料のダウンロード、
地図での立地確認など会員限定公開情報を閲覧・取得できるようになります。

会員登録(無料)

地図

会員登録後にご覧いただけます。

会員登録(無料)
×
区分
新着・未公開物件情報

登録で 会員規約プライバシーポリシー に同意したものとします。

※必須

会員登録(無料)
物件詳細や公開情報がご覧になれます!