道路に面した1階のスケルトン貸店舗・テナント物件のご案内です。

ゲスト

営業時間:9:30~18:30(土日・祝日を除く)

ゲスト

道路に面した1階のスケルトン貸店舗・テナント物件のご案内です。

居抜き市場トップ 居抜き物件、貸店舗を探す JR京浜東北・根岸線 , さいたま市大宮区 道路に面した1階のスケルトン貸店舗・テナント物件詳細

JR京浜東北・根岸線

大宮駅

徒歩5

所在地

さいたま市大宮区仲町・・・詳細は

貸店舗(スケルトン)の外観
大宮のスケルトン店舗物件の外観

ログイン後に

物件情報の全てがご覧いただけます。

会員登録(無料)
大宮のスケルトン物件の外観

ログイン後に

物件情報の全てがご覧いただけます。

会員登録(無料)
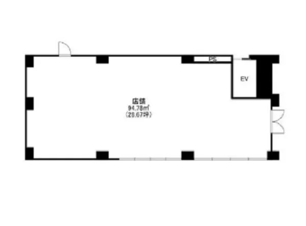
貸店舗(スケルトン)の平面図

ログイン後に

物件情報の全てがご覧いただけます。

会員登録(無料)
貸店舗(スケルトン)の外観
大宮のスケルトン店舗物件の外観
大宮のスケルトン物件の外観
貸店舗(スケルトン)の平面図
賃料

877,800円(税込)

階数/面積

1F / 28.67坪 (94.78㎡)

敷金・保証金

6ヶ月分

飲食条件

飲食可(重飲食不可)

物件タイプ/現業態

スケルトン

※会員限定の
情報
ございます。

会員限定の情報がございます。

会員登録(無料)をしていただくと、 物件詳細、物件資料のダウンロード、地図での立地確認など 会員限定の公開情報を閲覧・取得できるようになります。

会員登録(無料)
  • 路面店

【2026年1⽉中旬竣工予定】JR京浜東北線『大宮駅』徒歩5分、飲食店ご相談可能な新築貸店舗のご案内です。駅前から続く通りに面する1階路面店につき、ビジネスパーソンや近隣住民の中心に集客が期待できます。重飲食を除く飲食店や、物販・サービス店などの出店におすすめです。詳細につきましては、レスタンダードまでお気軽にお問い合わせください

物件概要

会員登録(無料)をすることで
物件情報の全てがご覧いただけます。

会員登録(無料)をしていただくと、他社には出回っていない物件情報の収集、
非会員の方には閲覧できない詳細情報、物件資料のダウンロード、
地図での立地確認など会員限定公開情報を閲覧・取得できるようになります。

会員登録(無料)

地図

会員登録後にご覧いただけます。

会員登録(無料)
×
区分
新着・未公開物件情報

登録で 会員規約プライバシーポリシー に同意したものとします。

※必須

会員登録(無料)
物件詳細や公開情報がご覧になれます!