横須賀中央駅徒歩7分のスケルトン店舗物件のご案内です。

ゲスト

営業時間:9:30~18:30(土日・祝日を除く)

ゲスト

横須賀中央駅徒歩7分のスケルトン店舗物件のご案内です。

居抜き市場トップ 居抜き物件、貸店舗を探す 京急本線 , 横須賀市 横須賀中央駅徒歩7分のスケルトン店舗物件詳細

京急本線

横須賀中央駅

徒歩7

所在地

横須賀市米が浜通・・・詳細は

横須賀中央のスケルトン店舗物件の外観
横須賀中央のスケルトン物件の内装

ログイン後に

物件情報の全てがご覧いただけます。

会員登録(無料)
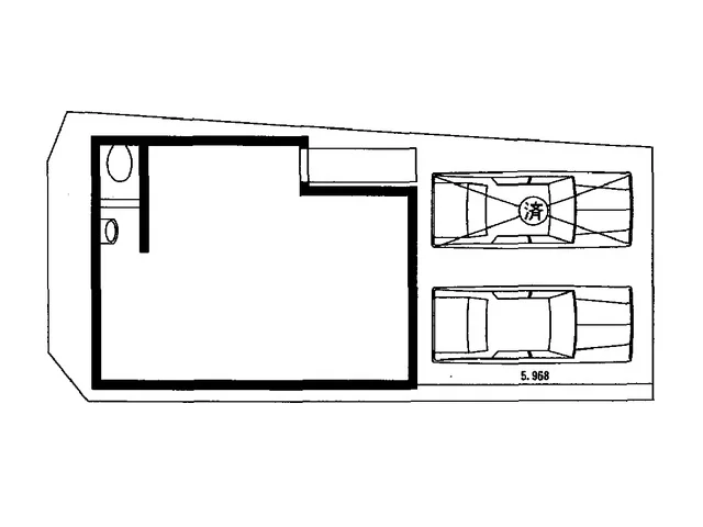
横須賀中央のスケルトン店舗物件の平面図

ログイン後に

物件情報の全てがご覧いただけます。

会員登録(無料)
横須賀中央のスケルトン店舗物件の外観
横須賀中央のスケルトン物件の内装
横須賀中央のスケルトン店舗物件の平面図
賃料

181,500円(税込)

階数/面積

1F / 14.65坪 (48.44㎡)

敷金・保証金

3ヶ月分

飲食条件

飲食可

物件タイプ/現業態

スケルトン

※会員限定の
情報
ございます。

会員限定の情報がございます。

会員登録(無料)をしていただくと、 物件詳細、物件資料のダウンロード、地図での立地確認など 会員限定の公開情報を閲覧・取得できるようになります。

会員登録(無料)

京急本線『横須賀中央駅』徒歩7分、飲食店ご相談可能な貸店舗のご案内です。バス通りに面した1階部分のテナントで、視認性良好!「米が浜」バス停が目の前。近隣には総合病院やマンション群、小学校などあるため、地域住民の集客が期待できます。業種等お気軽にお問合せください。

物件概要

会員登録(無料)をすることで
物件情報の全てがご覧いただけます。

会員登録(無料)をしていただくと、他社には出回っていない物件情報の収集、
非会員の方には閲覧できない詳細情報、物件資料のダウンロード、
地図での立地確認など会員限定公開情報を閲覧・取得できるようになります。

会員登録(無料)

地図

会員登録後にご覧いただけます。

会員登録(無料)
×
区分
新着・未公開物件情報

登録で 会員規約プライバシーポリシー に同意したものとします。

※必須

会員登録(無料)
物件詳細や公開情報がご覧になれます!