道路に面した1階のスケルトン貸店舗・テナント物件のご案内です。

ゲスト

営業時間:9:30~18:30(土日・祝日を除く)

ゲスト

道路に面した1階のスケルトン貸店舗・テナント物件のご案内です。

居抜き市場トップ 居抜き物件、貸店舗を探す 都営新宿線 , 中央区 道路に面した1階のスケルトン貸店舗・テナント物件詳細

都営新宿線

浜町駅

徒歩2

所在地

中央区日本橋浜町・・・詳細は

浜町のスケルトン店舗物件の外観
貸店舗(スケルトン)の外観

ログイン後に

物件情報の全てがご覧いただけます。

会員登録(無料)
貸店舗(スケルトン)の外観

ログイン後に

物件情報の全てがご覧いただけます。

会員登録(無料)
浜町のスケルトン店舗物件の内装

ログイン後に

物件情報の全てがご覧いただけます。

会員登録(無料)
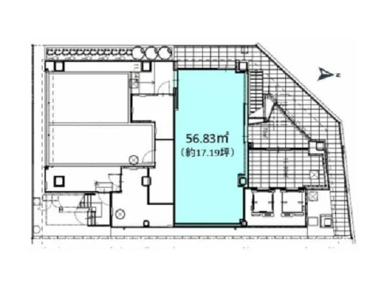
浜町のスケルトン物件の平面図

ログイン後に

物件情報の全てがご覧いただけます。

会員登録(無料)
浜町のスケルトン店舗物件の外観
貸店舗(スケルトン)の外観
貸店舗(スケルトン)の外観
浜町のスケルトン店舗物件の内装
浜町のスケルトン物件の平面図
賃料

680,724円(税込)

階数/面積

1F / 17.19坪 (56.83㎡)

敷金・保証金

12ヶ月分

飲食条件

飲食可

物件タイプ/現業態

スケルトン

※会員限定の
情報
ございます。

会員限定の情報がございます。

会員登録(無料)をしていただくと、 物件詳細、物件資料のダウンロード、地図での立地確認など 会員限定の公開情報を閲覧・取得できるようになります。

会員登録(無料)
  • 路面店

【築後未入居】都営新宿線『浜町駅』徒歩2分、飲食店ご相談可能な貸店舗のご案内です。『東日本橋駅』『人形町駅』も徒歩5分圏内と交通アクセス良好!2024年7月築の築浅物件のため使用感の少ないきれいな状態でのお引き渡しです。交通量の多い「久松町交差点」沿いの角地物件につき、周辺のビジネスパーソンを中心とした集客が期待できます。出店可能業態などの詳細は、店舗専門不動産のレスタンダードまでお問い合わせください。

物件概要

会員登録(無料)をすることで
物件情報の全てがご覧いただけます。

会員登録(無料)をしていただくと、他社には出回っていない物件情報の収集、
非会員の方には閲覧できない詳細情報、物件資料のダウンロード、
地図での立地確認など会員限定公開情報を閲覧・取得できるようになります。

会員登録(無料)

地図

会員登録後にご覧いただけます。

会員登録(無料)
×
区分
新着・未公開物件情報

登録で 会員規約プライバシーポリシー に同意したものとします。

※必須

会員登録(無料)
物件詳細や公開情報がご覧になれます!