新宿三丁目駅徒歩2分の自由に造作が可能なスケルトン物件のご案内です。

ゲスト

営業時間:9:30~18:30(土日・祝日を除く)

ゲスト

新宿三丁目駅徒歩2分の自由に造作が可能なスケルトン物件のご案内です。

居抜き市場トップ 居抜き物件、貸店舗を探す 東京メトロ副都心線 , 新宿区 新宿三丁目駅徒歩2分の自由に造作が可能なスケルトン物件詳細

東京メトロ副都心線

新宿三丁目駅

徒歩2

所在地

新宿区新宿・・・詳細は

新宿三丁目のスケルトン店舗物件の外観
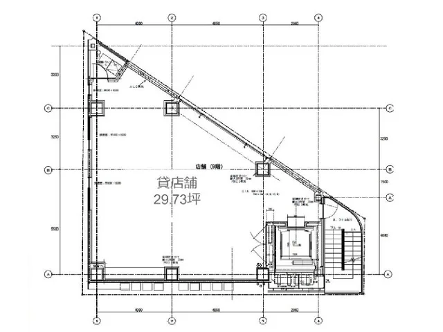
新宿三丁目のスケルトン店舗物件の平面図

ログイン後に

物件情報の全てがご覧いただけます。

会員登録(無料)
新宿三丁目のスケルトン店舗物件の外観
新宿三丁目のスケルトン店舗物件の平面図
賃料

825,000円(税込)

階数/面積

9F / 29.73坪 (99.3㎡)

敷金・保証金

12ヶ月分

飲食条件

飲食可(重飲食不可)

物件タイプ/現業態

スケルトン

※会員限定の
情報
ございます。

会員限定の情報がございます。

会員登録(無料)をしていただくと、 物件詳細、物件資料のダウンロード、地図での立地確認など 会員限定の公開情報を閲覧・取得できるようになります。

会員登録(無料)

『新宿三丁目駅』徒歩2分、飲食店ご相談可能な貸店舗のご案内です。靖国通りと明治通りが交わる交差点に位置しており、視認性良好です。1階では大手飲食チェーン店が盛業中!内装デザイン自由なスケルトン引き渡しです。諸条件等、お気軽にお問い合わせください。

物件概要

会員登録(無料)をすることで
物件情報の全てがご覧いただけます。

会員登録(無料)をしていただくと、他社には出回っていない物件情報の収集、
非会員の方には閲覧できない詳細情報、物件資料のダウンロード、
地図での立地確認など会員限定公開情報を閲覧・取得できるようになります。

会員登録(無料)

地図

会員登録後にご覧いただけます。

会員登録(無料)
×
区分
新着・未公開物件情報

登録で 会員規約プライバシーポリシー に同意したものとします。

※必須

会員登録(無料)
物件詳細や公開情報がご覧になれます!