王子駅、1階路面のスナック・パブ居抜き物件のご案内です。

ゲスト

営業時間:9:30~18:30(土日・祝日を除く)

ゲスト

王子駅、1階路面のスナック・パブ居抜き物件のご案内です。

居抜き市場トップ 居抜き物件、貸店舗を探す 東京メトロ南北線 , 北区 王子駅、1階路面のスナック・パブ居抜き物件情報

東京メトロ南北線

王子駅

徒歩3

所在地

北区王子・・・詳細は

王子の居抜き店舗の内装
王子のスナック・パブ居抜きの内装

ログイン後に

物件情報の全てがご覧いただけます。

会員登録(無料)
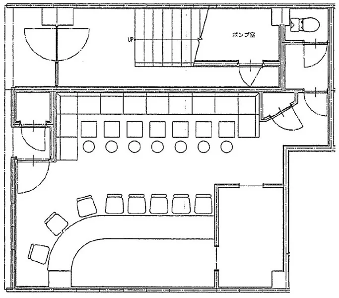
スナック・パブの居抜き物件の平面図

ログイン後に

物件情報の全てがご覧いただけます。

会員登録(無料)
王子のスナック・パブ居抜きの外観

ログイン後に

物件情報の全てがご覧いただけます。

会員登録(無料)
王子の居抜き店舗の内装
王子のスナック・パブ居抜きの内装
スナック・パブの居抜き物件の平面図
王子のスナック・パブ居抜きの外観
賃料

420,000円(税込)

階数/面積

1F / 12.12坪 (40.08㎡)

敷金・保証金

2,522,000円

造作代金

相談

飲食条件

飲食可

物件タイプ/現業態

居抜き / スナック・パブ

※会員限定の
情報
ございます。

会員限定の情報がございます。

会員登録(無料)をしていただくと、 物件詳細、物件資料のダウンロード、地図での立地確認など 会員限定の公開情報を閲覧・取得できるようになります。

会員登録(無料)
  • 路面店

JR京浜東北線『王子駅』徒歩3分、スナック居抜き物件のご紹介です。店内はカウンター8席とソファー17席のレイアウト。スナックらしいレトロな雰囲気の内装で、バーや喫茶店にもおすすめです。造作代無償のため、初期費用を抑えての開業が可能!諸条件等、お気軽にお問合せください。

物件概要

会員登録(無料)をすることで
物件情報の全てがご覧いただけます。

会員登録(無料)をしていただくと、他社には出回っていない物件情報の収集、
非会員の方には閲覧できない詳細情報、物件資料のダウンロード、
地図での立地確認など会員限定公開情報を閲覧・取得できるようになります。

会員登録(無料)

地図

会員登録後にご覧いただけます。

会員登録(無料)
×
区分
新着・未公開物件情報

登録で 会員規約プライバシーポリシー に同意したものとします。

※必須

会員登録(無料)
物件詳細や公開情報がご覧になれます!