天王洲アイル駅徒歩2分の寿司居抜き物件のご案内です。

ゲスト

営業時間:9:30~18:30(土日・祝日を除く)

ゲスト

天王洲アイル駅徒歩2分の寿司居抜き物件のご案内です。

居抜き市場トップ 居抜き物件、貸店舗を探す 東京モノレール , 品川区 天王洲アイル駅徒歩2分の寿司居抜き物件情報

東京モノレール

天王洲アイル駅

徒歩2

所在地

品川区東品川・・・詳細は

天王洲アイルの寿司居抜きの内装
天王洲アイルの居抜き店舗の内装

ログイン後に

物件情報の全てがご覧いただけます。

会員登録(無料)
天王洲アイルの居抜き店舗の内装

ログイン後に

物件情報の全てがご覧いただけます。

会員登録(無料)
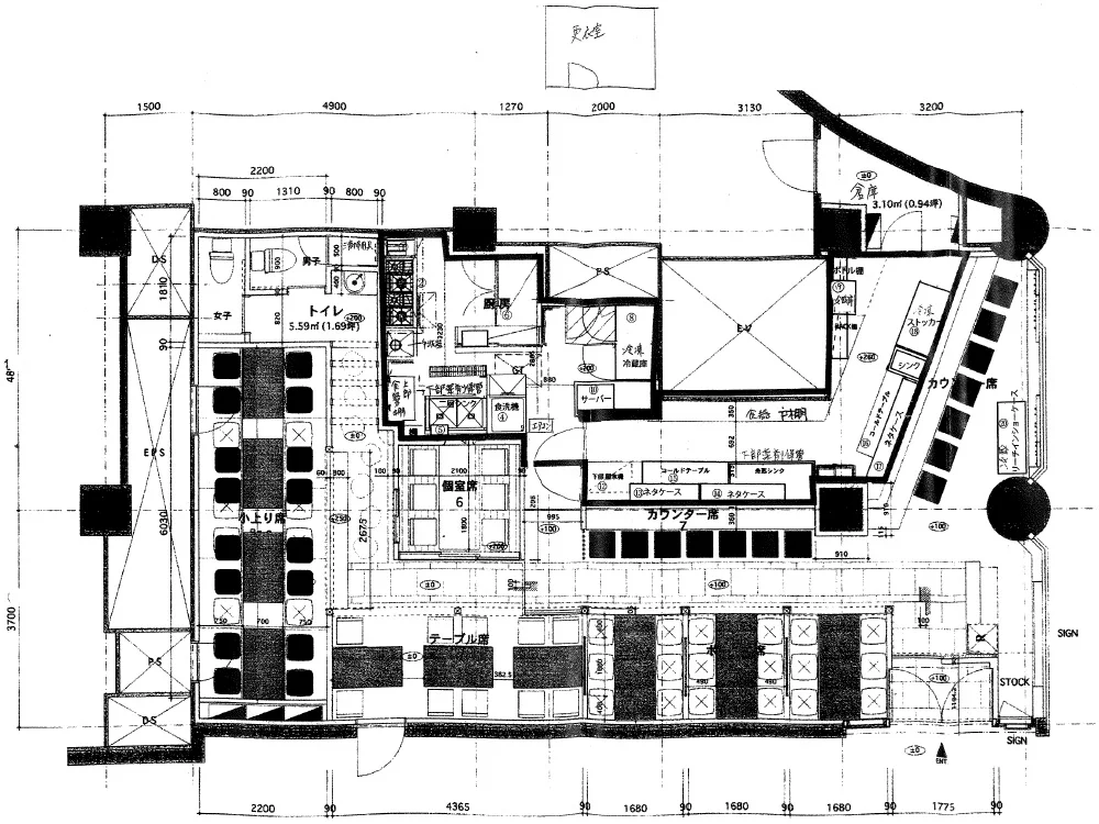
寿司の居抜き物件の平面図

ログイン後に

物件情報の全てがご覧いただけます。

会員登録(無料)
天王洲アイルの寿司居抜きの内装
天王洲アイルの居抜き店舗の内装
天王洲アイルの居抜き店舗の内装
寿司の居抜き物件の平面図
賃料

512,083円(税込)

階数/面積

1F / 35.81坪 (118.38㎡)

敷金・保証金

12ヶ月分

造作代金

1,100,000円(税込)

飲食条件

飲食可

物件タイプ/現業態

居抜き / 寿司

※会員限定の
情報
ございます。

会員限定の情報がございます。

会員登録(無料)をしていただくと、 物件詳細、物件資料のダウンロード、地図での立地確認など 会員限定の公開情報を閲覧・取得できるようになります。

会員登録(無料)

東京モノレール・りんかい線『天王洲アイル駅』徒歩2分、寿司屋居抜き物件のご紹介です。店内はカウンター席・テーブル席・個室のある、70席のレイアウト!おひとり様からグループ客まで幅広いお客様に対応可能です。駅周辺はビジネス拠点として多くのオフィスビルが集まるほか、再開発が進むエリアで超高層マンションの建設も進行中。今後ますます集客が期待できるエリアです。

物件概要

会員登録(無料)をすることで
物件情報の全てがご覧いただけます。

会員登録(無料)をしていただくと、他社には出回っていない物件情報の収集、
非会員の方には閲覧できない詳細情報、物件資料のダウンロード、
地図での立地確認など会員限定公開情報を閲覧・取得できるようになります。

会員登録(無料)

地図

会員登録後にご覧いただけます。

会員登録(無料)
×
区分
新着・未公開物件情報

登録で 会員規約プライバシーポリシー に同意したものとします。

※必須

会員登録(無料)
物件詳細や公開情報がご覧になれます!