1階路面、横浜市保土ケ谷区神戸町の韓国料理居抜き物件のご案内です。

ゲスト

営業時間:9:30~18:30(土日・祝日を除く)

ゲスト

1階路面、横浜市保土ケ谷区神戸町の韓国料理居抜き物件のご案内です。

居抜き市場トップ 居抜き物件、貸店舗を探す 相鉄本線 , 横浜市保土ケ谷区 1階路面、横浜市保土ケ谷区神戸町の韓国料理居抜き物件詳細

相鉄本線

天王町駅

徒歩5

所在地

横浜市保土ケ谷区神戸町・・・詳細は

韓国料理の居抜き物件の内装
韓国料理の居抜き物件の内装

ログイン後に

物件情報の全てがご覧いただけます。

会員登録(無料)
韓国料理の居抜き物件の厨房

ログイン後に

物件情報の全てがご覧いただけます。

会員登録(無料)
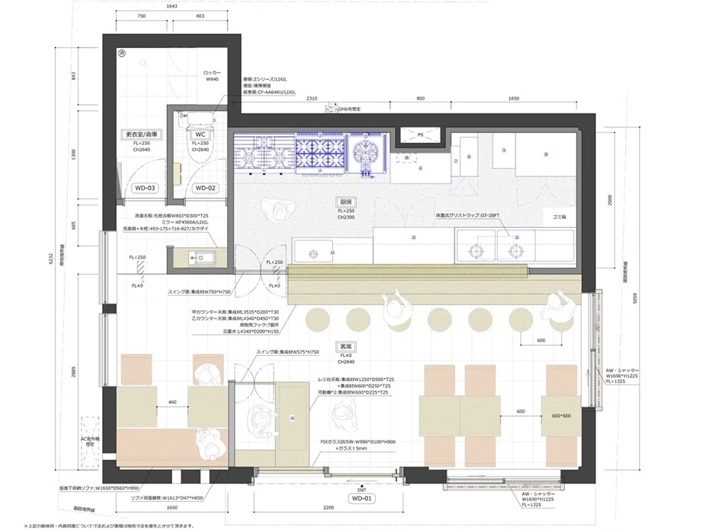
韓国料理の居抜き物件の平面図

ログイン後に

物件情報の全てがご覧いただけます。

会員登録(無料)
韓国料理の居抜き物件の内装
韓国料理の居抜き物件の内装
韓国料理の居抜き物件の厨房
韓国料理の居抜き物件の平面図
賃料

198,000円(税込)

階数/面積

1F / 12.73坪 (42.09㎡)

敷金・保証金

-

造作代金

3,500,000円(税込)

飲食条件

飲食可

物件タイプ/現業態

居抜き / 韓国料理

※会員限定の
情報
ございます。

会員限定の情報がございます。

会員登録(無料)をしていただくと、 物件詳細、物件資料のダウンロード、地図での立地確認など 会員限定の公開情報を閲覧・取得できるようになります。

会員登録(無料)
  • 路面店
  • 値下げ

相鉄本線『天王町駅』徒歩5分、韓国料理店居抜き物件のご紹介です。店内はカウンター6席・テーブル10席、全16席のレイアウト。カフェにもおすすめな明るくお洒落な内装です。住宅街の真ん中に立地していますが、近隣には横浜ビジネスパークというオフィスビルもあり、ビジネスパーソンのランチ・ディナー需要も期待できます。

物件概要

会員登録(無料)をすることで
物件情報の全てがご覧いただけます。

会員登録(無料)をしていただくと、他社には出回っていない物件情報の収集、
非会員の方には閲覧できない詳細情報、物件資料のダウンロード、
地図での立地確認など会員限定公開情報を閲覧・取得できるようになります。

会員登録(無料)

地図

会員登録後にご覧いただけます。

会員登録(無料)
×
区分
新着・未公開物件情報

登録で 会員規約プライバシーポリシー に同意したものとします。

※必須

会員登録(無料)
物件詳細や公開情報がご覧になれます!