入谷駅徒歩1分の事務所仕様の物件のご案内です。

ゲスト

営業時間:9:30~18:30(土日・祝日を除く)

ゲスト

入谷駅徒歩1分の事務所仕様の物件のご案内です。

居抜き市場トップ 居抜き物件、貸店舗を探す 東京メトロ日比谷線 , 台東区 入谷駅徒歩1分の事務所仕様の物件情報

東京メトロ日比谷線

入谷駅

徒歩1

所在地

台東区北上野・・・詳細は

入谷の事務所仕様店舗物件の外観
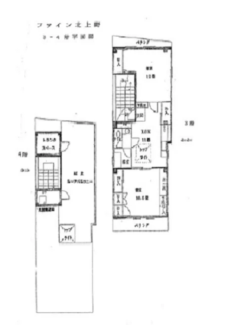
入谷の事務所仕様物件の平面図

ログイン後に

物件情報の全てがご覧いただけます。

会員登録(無料)
入谷の事務所仕様店舗物件の外観
入谷の事務所仕様物件の平面図
賃料

220,000円(税込)

階数/面積

3F~4F / 24.09坪 (79.66㎡)

敷金・保証金

10ヶ月分

飲食条件

軽飲食可

物件タイプ/現業態

事務所仕様

※会員限定の
情報
ございます。

会員限定の情報がございます。

会員登録(無料)をしていただくと、 物件詳細、物件資料のダウンロード、地図での立地確認など 会員限定の公開情報を閲覧・取得できるようになります。

会員登録(無料)

東京メトロ日比谷線『入谷駅』徒歩1分、軽飲食店ご相談可能な貸店舗のご案内です。言問通り沿いのビル3~4階店舗!駅至近でアクセス良好です。周辺でも多数飲食店が営業中する人気エリアです。業種等お気軽にお問い合わせください。

物件概要

会員登録(無料)をすることで
物件情報の全てがご覧いただけます。

会員登録(無料)をしていただくと、他社には出回っていない物件情報の収集、
非会員の方には閲覧できない詳細情報、物件資料のダウンロード、
地図での立地確認など会員限定公開情報を閲覧・取得できるようになります。

会員登録(無料)

地図

会員登録後にご覧いただけます。

会員登録(無料)
×
区分
新着・未公開物件情報

登録で 会員規約プライバシーポリシー に同意したものとします。

※必須

会員登録(無料)
物件詳細や公開情報がご覧になれます!