重飲食可能な横浜市金沢区谷津町にある1階のスケルトン物件のご案内です。

ゲスト

営業時間:9:30~18:30(土日・祝日を除く)

ゲスト

重飲食可能な横浜市金沢区谷津町にある1階のスケルトン物件のご案内です。

居抜き市場トップ 居抜き物件、貸店舗を探す 京急本線 , 横浜市金沢区 重飲食可能な横浜市金沢区谷津町にある1階のスケルトン物件情報

京急本線

金沢文庫駅

徒歩1

所在地

横浜市金沢区谷津町・・・詳細は

金沢文庫のスケルトン物件の外観
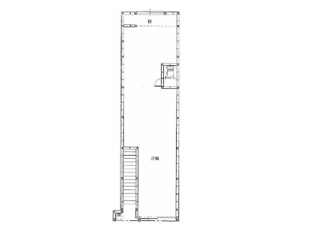
貸店舗(スケルトン)の平面図

ログイン後に

物件情報の全てがご覧いただけます。

会員登録(無料)
金沢文庫のスケルトン物件の外観
貸店舗(スケルトン)の平面図
賃料

363,000円(税込)

階数/面積

1F / 14.99坪 (49.57㎡)

敷金・保証金

6ヶ月分

飲食条件

重飲食可

物件タイプ/現業態

スケルトン

※会員限定の
情報
ございます。

会員限定の情報がございます。

会員登録(無料)をしていただくと、 物件詳細、物件資料のダウンロード、地図での立地確認など 会員限定の公開情報を閲覧・取得できるようになります。

会員登録(無料)

京急本線『金沢文庫駅』徒歩1分、重飲食店ご相談可能な貸店舗のご案内です。駅前すずらん商店街入口の路面。周辺は飲食店はじめ、様々な店舗が沢山あり集客が見込めます。2階との一括貸しも可能。業種等お気軽にお問合せください。

物件概要

会員登録(無料)をすることで
物件情報の全てがご覧いただけます。

会員登録(無料)をしていただくと、他社には出回っていない物件情報の収集、
非会員の方には閲覧できない詳細情報、物件資料のダウンロード、
地図での立地確認など会員限定公開情報を閲覧・取得できるようになります。

会員登録(無料)

地図

会員登録後にご覧いただけます。

会員登録(無料)
×
区分
新着・未公開物件情報

登録で 会員規約プライバシーポリシー に同意したものとします。

※必須

会員登録(無料)
物件詳細や公開情報がご覧になれます!