錦糸町駅徒歩7分のスケルトン店舗物件のご案内です。

ゲスト

営業時間:9:30~18:30(土日・祝日を除く)

ゲスト

錦糸町駅徒歩7分のスケルトン店舗物件のご案内です。

居抜き市場トップ 居抜き物件、貸店舗を探す JR総武本線 , 墨田区 錦糸町駅徒歩7分のスケルトン店舗物件詳細

JR総武本線

錦糸町駅

徒歩7

所在地

墨田区亀沢・・・詳細は

錦糸町のスケルトン店舗物件の外観
貸店舗(スケルトン)の外観

ログイン後に

物件情報の全てがご覧いただけます。

会員登録(無料)
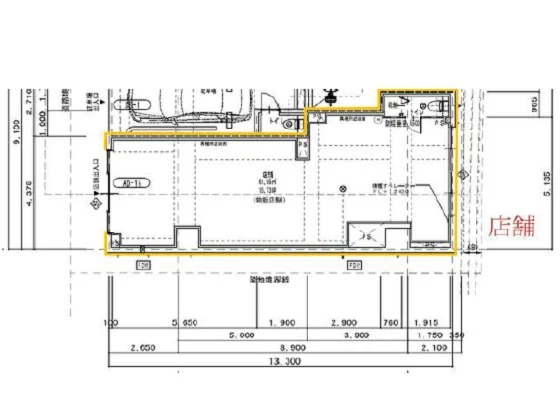
貸店舗(スケルトン)の平面図

ログイン後に

物件情報の全てがご覧いただけます。

会員登録(無料)
錦糸町のスケルトン店舗物件の平面図

ログイン後に

物件情報の全てがご覧いただけます。

会員登録(無料)
錦糸町のスケルトン店舗物件の外観
貸店舗(スケルトン)の外観
貸店舗(スケルトン)の平面図
錦糸町のスケルトン店舗物件の平面図
賃料

468,250円(税込)

階数/面積

1F / 18.73坪 (61.95㎡)

敷金・保証金

6ヶ月分

飲食条件

飲食可

物件タイプ/現業態

スケルトン

※会員限定の
情報
ございます。

会員限定の情報がございます。

会員登録(無料)をしていただくと、 物件詳細、物件資料のダウンロード、地図での立地確認など 会員限定の公開情報を閲覧・取得できるようになります。

会員登録(無料)

JR総武本線『錦糸町駅』徒歩7分、飲食店相談可能な新築スケルトン物件のご紹介です。2025年10月竣工予定!内装デザインにこだわりたい方にもおすすめです。周辺は大手飲食チェーン店持つ出店する人気エリア!宿泊施設も多く、観光客の集客も期待できます。諸条件等、お気軽にお問合せください。

物件概要

会員登録(無料)をすることで
物件情報の全てがご覧いただけます。

会員登録(無料)をしていただくと、他社には出回っていない物件情報の収集、
非会員の方には閲覧できない詳細情報、物件資料のダウンロード、
地図での立地確認など会員限定公開情報を閲覧・取得できるようになります。

会員登録(無料)

地図

会員登録後にご覧いただけます。

会員登録(無料)
×
区分
新着・未公開物件情報

登録で 会員規約プライバシーポリシー に同意したものとします。

※必須

会員登録(無料)
物件詳細や公開情報がご覧になれます!