江東区富岡にある1階の医院居抜き物件のご案内です。

ゲスト

営業時間:9:30~18:30(土日・祝日を除く)

ゲスト

江東区富岡にある1階の医院居抜き物件のご案内です。

居抜き市場トップ 居抜き物件、貸店舗を探す 東京メトロ東西線 , 江東区 江東区富岡にある1階の医院居抜き物件詳細

東京メトロ東西線

門前仲町駅

徒歩2

所在地

江東区富岡・・・詳細は

門前仲町の居抜き店舗の外観
門前仲町の居抜き店舗の外観

ログイン後に

物件情報の全てがご覧いただけます。

会員登録(無料)
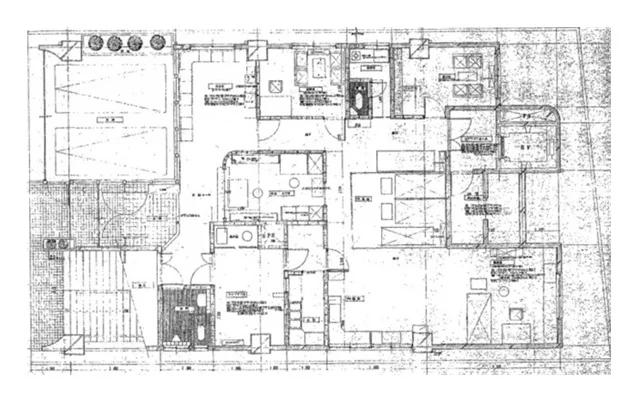
医院の居抜き物件の平面図

ログイン後に

物件情報の全てがご覧いただけます。

会員登録(無料)
門前仲町の居抜き店舗の外観
門前仲町の居抜き店舗の外観
医院の居抜き物件の平面図
賃料

1,292,500円(税込)

階数/面積

1F / 46.99坪 (155.37㎡)

敷金・保証金

10ヶ月分

造作代金

相談

飲食条件

飲食不可

物件タイプ/現業態

居抜き / 医院

※会員限定の
情報
ございます。

会員限定の情報がございます。

会員登録(無料)をしていただくと、 物件詳細、物件資料のダウンロード、地図での立地確認など 会員限定の公開情報を閲覧・取得できるようになります。

会員登録(無料)

東京メトロ東西線『門前仲町駅』徒歩2分、クリニック居抜き物件のご紹介です。直近では内科が営業しておりました。都道沿いの1階店舗です。周辺は多数店舗で賑わう人通りの多いエリア!近くにはバス停もあり、アクセス良好です。諸条件等、お気軽にお問合せください。

物件概要

会員登録(無料)をすることで
物件情報の全てがご覧いただけます。

会員登録(無料)をしていただくと、他社には出回っていない物件情報の収集、
非会員の方には閲覧できない詳細情報、物件資料のダウンロード、
地図での立地確認など会員限定公開情報を閲覧・取得できるようになります。

会員登録(無料)

地図

会員登録後にご覧いただけます。

会員登録(無料)
×
区分
新着・未公開物件情報

登録で 会員規約プライバシーポリシー に同意したものとします。

※必須

会員登録(無料)
物件詳細や公開情報がご覧になれます!