江戸川橋駅徒歩6分のスケルトン店舗物件のご案内です。

ゲスト

営業時間:9:30~18:30(土日・祝日を除く)

ゲスト

江戸川橋駅徒歩6分のスケルトン店舗物件のご案内です。

居抜き市場トップ 居抜き物件、貸店舗を探す 東京メトロ有楽町線 , 文京区 江戸川橋駅徒歩6分のスケルトン店舗物件詳細

東京メトロ有楽町線

江戸川橋駅

徒歩6

所在地

文京区水道・・・詳細は

貸店舗(スケルトン)の外観
貸店舗(スケルトン)の外観

ログイン後に

物件情報の全てがご覧いただけます。

会員登録(無料)
江戸川橋のスケルトン店舗物件の内装

ログイン後に

物件情報の全てがご覧いただけます。

会員登録(無料)
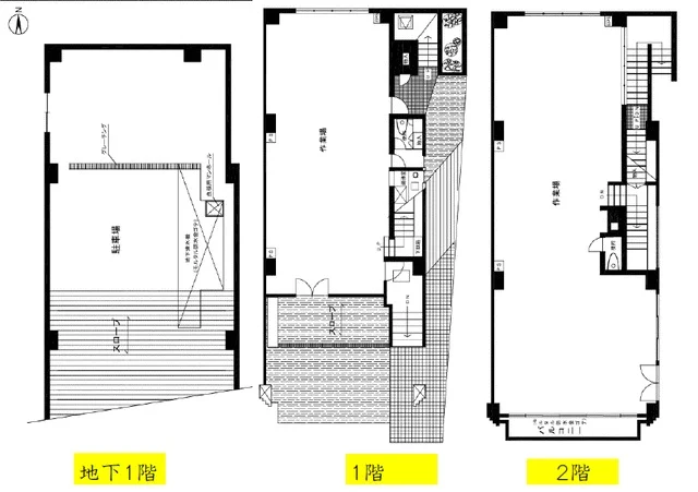
江戸川橋のスケルトン物件の平面図

ログイン後に

物件情報の全てがご覧いただけます。

会員登録(無料)
貸店舗(スケルトン)の外観
貸店舗(スケルトン)の外観
江戸川橋のスケルトン店舗物件の内装
江戸川橋のスケルトン物件の平面図
賃料

1,045,000円(税込)

階数/面積

-1F~2F / 87.05坪 (287.77㎡)

敷金・保証金

3ヶ月分

飲食条件

飲食可

物件タイプ/現業態

スケルトン

※会員限定の
情報
ございます。

会員限定の情報がございます。

会員登録(無料)をしていただくと、 物件詳細、物件資料のダウンロード、地図での立地確認など 会員限定の公開情報を閲覧・取得できるようになります。

会員登録(無料)

東京メトロ有楽町線『江戸川橋駅』徒歩6分、飲食店ご相談可能な貸店舗のご案内です。周辺は基本的にはマンション。そのなかに印刷会社や製本所などが点在している、駅近のわりに静かなエリアです。店舗・事務所をはじめ、飲食店など相談可。業種等お気軽にご相談ください。

物件概要

会員登録(無料)をすることで
物件情報の全てがご覧いただけます。

会員登録(無料)をしていただくと、他社には出回っていない物件情報の収集、
非会員の方には閲覧できない詳細情報、物件資料のダウンロード、
地図での立地確認など会員限定公開情報を閲覧・取得できるようになります。

会員登録(無料)

地図

会員登録後にご覧いただけます。

会員登録(無料)
×
区分
新着・未公開物件情報

登録で 会員規約プライバシーポリシー に同意したものとします。

※必須

会員登録(無料)
物件詳細や公開情報がご覧になれます!