池尻大橋駅徒歩3分のスケルトン店舗物件のご案内です。

ゲスト

営業時間:9:30~18:30(土日・祝日を除く)

ゲスト

池尻大橋駅徒歩3分のスケルトン店舗物件のご案内です。

居抜き市場トップ 居抜き物件、貸店舗を探す 東急田園都市線 , 目黒区 池尻大橋駅徒歩3分のスケルトン店舗物件詳細

東急田園都市線

池尻大橋駅

徒歩3

所在地

目黒区東山・・・詳細は

池尻大橋のスケルトン物件の外観
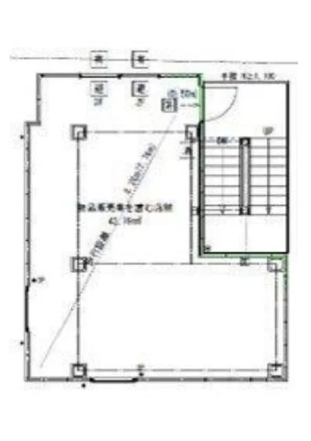
池尻大橋のスケルトン店舗物件の平面図

ログイン後に

物件情報の全てがご覧いただけます。

会員登録(無料)
池尻大橋のスケルトン物件の外観

ログイン後に

物件情報の全てがご覧いただけます。

会員登録(無料)
池尻大橋のスケルトン物件の内装

ログイン後に

物件情報の全てがご覧いただけます。

会員登録(無料)
貸店舗(スケルトン)の内装

ログイン後に

物件情報の全てがご覧いただけます。

会員登録(無料)
池尻大橋のスケルトン店舗物件の内装

ログイン後に

物件情報の全てがご覧いただけます。

会員登録(無料)
貸店舗(スケルトン)の内装

ログイン後に

物件情報の全てがご覧いただけます。

会員登録(無料)
池尻大橋のスケルトン物件の外観
池尻大橋のスケルトン店舗物件の平面図
池尻大橋のスケルトン物件の外観
池尻大橋のスケルトン物件の内装
貸店舗(スケルトン)の内装
池尻大橋のスケルトン店舗物件の内装
貸店舗(スケルトン)の内装
賃料

500,000円(税込)

階数/面積

2F / 12.93坪 (42.77㎡)

敷金・保証金

6ヶ月分

飲食条件

飲食可

物件タイプ/現業態

スケルトン

※会員限定の
情報
ございます。

会員限定の情報がございます。

会員登録(無料)をしていただくと、 物件詳細、物件資料のダウンロード、地図での立地確認など 会員限定の公開情報を閲覧・取得できるようになります。

会員登録(無料)

東急田園都市線『池尻大橋駅』徒歩3分、飲食店可能な貸店舗のご紹介です。駅チカかつ目黒川沿いに位置し、また近辺に目黒天空庭園があるため地域住民から観光で訪れる方まで幅広い客層の集客が期待できます。詳細はレスタンダードまでお問合せください。

物件概要

会員登録(無料)をすることで
物件情報の全てがご覧いただけます。

会員登録(無料)をしていただくと、他社には出回っていない物件情報の収集、
非会員の方には閲覧できない詳細情報、物件資料のダウンロード、
地図での立地確認など会員限定公開情報を閲覧・取得できるようになります。

会員登録(無料)

地図

会員登録後にご覧いただけます。

会員登録(無料)
×
区分
新着・未公開物件情報

登録で 会員規約プライバシーポリシー に同意したものとします。

※必須

会員登録(無料)
物件詳細や公開情報がご覧になれます!