品川区北品川にある3階のエステ居抜き物件のご案内です。

ゲスト

営業時間:9:30~18:30(土日・祝日を除く)

ゲスト

品川区北品川にある3階のエステ居抜き物件のご案内です。

居抜き市場トップ 居抜き物件、貸店舗を探す 京急本線 , 品川区 品川区北品川にある3階のエステ居抜き物件詳細

京急本線

北品川駅

徒歩4

所在地

品川区北品川・・・詳細は

北品川の居抜き店舗の内装
北品川のエステ居抜きの外観

ログイン後に

物件情報の全てがご覧いただけます。

会員登録(無料)
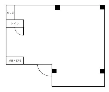
北品川のエステ居抜きの平面図

ログイン後に

物件情報の全てがご覧いただけます。

会員登録(無料)
北品川の居抜き店舗の内装
北品川のエステ居抜きの外観
北品川のエステ居抜きの平面図
賃料

189,800円(税込)

階数/面積

3F / 17.64坪 (58.34㎡)

敷金・保証金

2ヶ月分

造作代金

相談

飲食条件

飲食不可

物件タイプ/現業態

居抜き / エステ

※会員限定の
情報
ございます。

会員限定の情報がございます。

会員登録(無料)をしていただくと、 物件詳細、物件資料のダウンロード、地図での立地確認など 会員限定の公開情報を閲覧・取得できるようになります。

会員登録(無料)

京急本線『北品川駅』徒歩4分、エステサロン居抜き物件のご紹介です。北品川本通り商店会に位置するビル4階テナント!周辺はクリニックやスーパーマーケット、飲食店など地域に根差した店舗が多数盛業中です。整体院やマッサージ店にもおすすめ!諸条件等、お気軽にお問合せください。

物件概要

会員登録(無料)をすることで
物件情報の全てがご覧いただけます。

会員登録(無料)をしていただくと、他社には出回っていない物件情報の収集、
非会員の方には閲覧できない詳細情報、物件資料のダウンロード、
地図での立地確認など会員限定公開情報を閲覧・取得できるようになります。

会員登録(無料)

地図

会員登録後にご覧いただけます。

会員登録(無料)
×
区分
新着・未公開物件情報

登録で 会員規約プライバシーポリシー に同意したものとします。

※必須

会員登録(無料)
物件詳細や公開情報がご覧になれます!