千葉市花見川区幕張町にある4階のスケルトン貸店舗・テナント物件のご案内です。

ゲスト

営業時間:9:30~18:30(土日・祝日を除く)

ゲスト

千葉市花見川区幕張町にある4階のスケルトン貸店舗・テナント物件のご案内です。

居抜き市場トップ 居抜き物件、貸店舗を探す JR中央・総武線 , 千葉市花見川区 千葉市花見川区幕張町にある4階のスケルトン貸店舗・テナント物件詳細

JR中央・総武線

幕張駅

徒歩2

所在地

千葉市花見川区幕張町・・・詳細は

幕張のスケルトン物件の外観
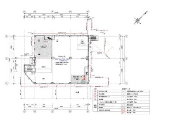
幕張のスケルトン物件の平面図

ログイン後に

物件情報の全てがご覧いただけます。

会員登録(無料)
幕張のスケルトン物件の外観
幕張のスケルトン物件の平面図
賃料

1,980,000円(税込)

階数/面積

4F / 176.96坪 (585㎡)

敷金・保証金

6ヶ月分

飲食条件

飲食可

物件タイプ/現業態

スケルトン

※会員限定の
情報
ございます。

会員限定の情報がございます。

会員登録(無料)をしていただくと、 物件詳細、物件資料のダウンロード、地図での立地確認など 会員限定の公開情報を閲覧・取得できるようになります。

会員登録(無料)

JR総武線『幕張駅』徒歩2分、飲食店可能な貸店舗のご紹介です。2025年2月に竣工した新築物件!駅前ロータリーに面した開放感のある好立地!約176坪と、なかなか出ない大箱物件です。諸条件等、お気軽にお問合せください。

物件概要

会員登録(無料)をすることで
物件情報の全てがご覧いただけます。

会員登録(無料)をしていただくと、他社には出回っていない物件情報の収集、
非会員の方には閲覧できない詳細情報、物件資料のダウンロード、
地図での立地確認など会員限定公開情報を閲覧・取得できるようになります。

会員登録(無料)

地図

会員登録後にご覧いただけます。

会員登録(無料)
×
区分
新着・未公開物件情報

登録で 会員規約プライバシーポリシー に同意したものとします。

※必須

会員登録(無料)
物件詳細や公開情報がご覧になれます!