川崎市川崎区砂子にある3階の事務所仕様の貸店舗・テナント物件のご案内です。

ゲスト

営業時間:9:30~18:30(土日・祝日を除く)

ゲスト

川崎市川崎区砂子にある3階の事務所仕様の貸店舗・テナント物件のご案内です。

居抜き市場トップ 居抜き物件、貸店舗を探す 京急本線 , 川崎市川崎区 川崎市川崎区砂子にある3階の事務所仕様の貸店舗・テナント物件詳細

京急本線

京急川崎駅

徒歩3

所在地

川崎市川崎区砂子・・・詳細は

京急川崎の事務所仕様店舗物件の外観
京急川崎の事務所仕様物件の外観

ログイン後に

物件情報の全てがご覧いただけます。

会員登録(無料)
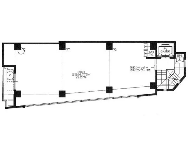
京急川崎の事務所仕様物件の平面図

ログイン後に

物件情報の全てがご覧いただけます。

会員登録(無料)
京急川崎の事務所仕様店舗物件の外観
京急川崎の事務所仕様物件の外観
京急川崎の事務所仕様物件の平面図
賃料

550,000円(税込)

階数/面積

3F / 29.27坪 (96.77㎡)

敷金・保証金

500万円

飲食条件

飲食可

物件タイプ/現業態

事務所仕様

※会員限定の
情報
ございます。

会員限定の情報がございます。

会員登録(無料)をしていただくと、 物件詳細、物件資料のダウンロード、地図での立地確認など 会員限定の公開情報を閲覧・取得できるようになります。

会員登録(無料)

京急本線『京急川崎駅』徒歩3分、重飲食店ご相談可能な貸店舗のご案内です。JR各線『川崎駅』からも徒歩7分。2024年2月築のきれいなビルです!交差点角地のため、3階でも視認性は良好。引渡は10月中旬予定。業種等お気軽にお問合せください。

物件概要

会員登録(無料)をすることで
物件情報の全てがご覧いただけます。

会員登録(無料)をしていただくと、他社には出回っていない物件情報の収集、
非会員の方には閲覧できない詳細情報、物件資料のダウンロード、
地図での立地確認など会員限定公開情報を閲覧・取得できるようになります。

会員登録(無料)

地図

会員登録後にご覧いただけます。

会員登録(無料)
×
区分
新着・未公開物件情報

登録で 会員規約プライバシーポリシー に同意したものとします。

※必須

会員登録(無料)
物件詳細や公開情報がご覧になれます!