居抜き物件で重飲食ができる1階路面の店舗のご案内です。

ゲスト

営業時間:9:30~18:30(土日・祝日を除く)

ゲスト

居抜き物件で重飲食ができる1階路面の店舗のご案内です。

居抜き市場トップ 居抜き物件、貸店舗を探す 都営三田線 , 港区 居抜き物件で重飲食ができる1階路面の店舗情報

都営三田線

内幸町駅

徒歩1

所在地

港区新橋・・・詳細は

内幸町の焼肉屋居抜きの内装
内幸町の焼肉屋居抜きの内装

ログイン後に

物件情報の全てがご覧いただけます。

会員登録(無料)
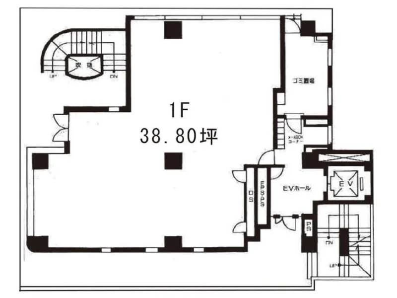
内幸町の居抜き店舗の平面図

ログイン後に

物件情報の全てがご覧いただけます。

会員登録(無料)
焼肉屋の居抜き物件の外観

ログイン後に

物件情報の全てがご覧いただけます。

会員登録(無料)
内幸町の焼肉屋居抜きの内装
内幸町の焼肉屋居抜きの内装
内幸町の居抜き店舗の平面図
焼肉屋の居抜き物件の外観
賃料

1,451,120円(税込)

階数/面積

1F / 38.8坪 (128.26㎡)

敷金・保証金

10ヶ月分

造作代金

3,000,000円(税込)

飲食条件

重飲食可

物件タイプ/現業態

居抜き / 焼肉屋

※会員限定の
情報
ございます。

会員限定の情報がございます。

会員登録(無料)をしていただくと、 物件詳細、物件資料のダウンロード、地図での立地確認など 会員限定の公開情報を閲覧・取得できるようになります。

会員登録(無料)
  • 路面店

『内幸町駅』『新橋駅』最寄り、焼肉店居抜き物件のご案内です。人通りの多い外堀通りと新橋仲通りの間に位置する1階路面店!周辺はオフィス・店舗が多いエリアでビジネスパーソンの需要が期待できます。周辺でも飲食店他店舗が盛業中で集客期待大!諸条件等、お気軽にお問合せください。

物件概要

会員登録(無料)をすることで
物件情報の全てがご覧いただけます。

会員登録(無料)をしていただくと、他社には出回っていない物件情報の収集、
非会員の方には閲覧できない詳細情報、物件資料のダウンロード、
地図での立地確認など会員限定公開情報を閲覧・取得できるようになります。

会員登録(無料)

地図

会員登録後にご覧いただけます。

会員登録(無料)
×
区分
新着・未公開物件情報

登録で 会員規約プライバシーポリシー に同意したものとします。

※必須

会員登録(無料)
物件詳細や公開情報がご覧になれます!