江戸川橋駅、1階路面のスケルトン店舗物件のご案内です。

ゲスト

営業時間:9:30~18:30(土日・祝日を除く)

ゲスト

江戸川橋駅、1階路面のスケルトン店舗物件のご案内です。

居抜き市場トップ 居抜き物件、貸店舗を探す 東京メトロ有楽町線 , 新宿区 江戸川橋駅、1階路面のスケルトン店舗物件情報

東京メトロ有楽町線

江戸川橋駅

徒歩4

所在地

新宿区水道町・・・詳細は

貸店舗(スケルトン)の外観
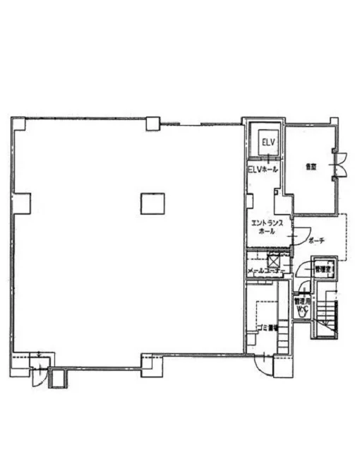
貸店舗(スケルトン)の平面図

ログイン後に

物件情報の全てがご覧いただけます。

会員登録(無料)
貸店舗(スケルトン)の外観
貸店舗(スケルトン)の平面図
賃料

1,108,600円(税込)

階数/面積

1F / 45.81坪 (151.44㎡)

敷金・保証金

12ヶ月分

飲食条件

軽飲食可

物件タイプ/現業態

スケルトン

※会員限定の
情報
ございます。

会員限定の情報がございます。

会員登録(無料)をしていただくと、 物件詳細、物件資料のダウンロード、地図での立地確認など 会員限定の公開情報を閲覧・取得できるようになります。

会員登録(無料)
  • 路面店

東京メトロ有楽町線『江戸川橋駅』徒歩4分、軽飲食可能な貸店舗のご紹介です。「目白通り」に面する角地の1階路面貸店舗で、視認性良好です。周辺には大規模オフィスビルがあり、裏通りにはマンションや戸建て住宅が多数立ち並んでいます。ビジネスパーソンや周辺住民の集客が期待できる物件です。以前はコンビニが営業しておりました。ご不明点や詳細につきましては、レスタンダードまでお気軽にお問い合わせください。

物件概要

会員登録(無料)をすることで
物件情報の全てがご覧いただけます。

会員登録(無料)をしていただくと、他社には出回っていない物件情報の収集、
非会員の方には閲覧できない詳細情報、物件資料のダウンロード、
地図での立地確認など会員限定公開情報を閲覧・取得できるようになります。

会員登録(無料)

地図

会員登録後にご覧いただけます。

会員登録(無料)
×
区分
新着・未公開物件情報

登録で 会員規約プライバシーポリシー に同意したものとします。

※必須

会員登録(無料)
物件詳細や公開情報がご覧になれます!