日本大通り駅、重飲食可能な1-5階の居抜き店舗のご案内です。

ゲスト

営業時間:9:30~18:30(土日・祝日を除く)

ゲスト

日本大通り駅、重飲食可能な1-5階の居抜き店舗のご案内です。

居抜き市場トップ 居抜き物件、貸店舗を探す みなとみらい線 , 横浜市中区 日本大通り駅、重飲食可能な1-5階の居抜き店舗詳細

みなとみらい線

日本大通り駅

徒歩5

所在地

横浜市中区山下町・・・詳細は

中華料理の居抜き物件の外観
日本大通りの中華料理居抜きの内装

ログイン後に

物件情報の全てがご覧いただけます。

会員登録(無料)
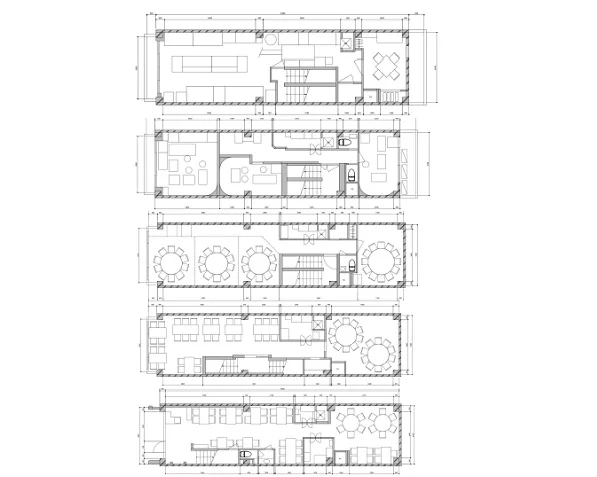
中華料理の居抜き物件の平面図

ログイン後に

物件情報の全てがご覧いただけます。

会員登録(無料)
中華料理の居抜き物件の外観
日本大通りの中華料理居抜きの内装
中華料理の居抜き物件の平面図
賃料

1,650,000円(税込)

階数/面積

1F~5F / 109.87坪 (363.21㎡)

敷金・保証金

10ヶ月分

造作代金

相談

飲食条件

重飲食可

物件タイプ/現業態

居抜き / 中華料理

※会員限定の
情報
ございます。

会員限定の情報がございます。

会員登録(無料)をしていただくと、 物件詳細、物件資料のダウンロード、地図での立地確認など 会員限定の公開情報を閲覧・取得できるようになります。

会員登録(無料)

【中華街】みなとみらい線『日本大通り駅』徒歩5分、1~5階一括貸しの中華料理店居抜き物件のご紹介です。「北門通り」沿いの視認性良好な建物で、横浜公園(横浜スタジアム)や区役所に近く、周辺はホテルも多いため観光客の利用も期待できます。中華街で複数階一括貸しの物件をご検討の方は。まずはお気軽にお問い合わせください。

物件概要

会員登録(無料)をすることで
物件情報の全てがご覧いただけます。

会員登録(無料)をしていただくと、他社には出回っていない物件情報の収集、
非会員の方には閲覧できない詳細情報、物件資料のダウンロード、
地図での立地確認など会員限定公開情報を閲覧・取得できるようになります。

会員登録(無料)

地図

会員登録後にご覧いただけます。

会員登録(無料)
×
区分
新着・未公開物件情報

登録で 会員規約プライバシーポリシー に同意したものとします。

※必須

会員登録(無料)
物件詳細や公開情報がご覧になれます!