浦和駅徒歩5分のダイニングバー居抜き物件のご案内です。

ゲスト

営業時間:9:30~18:30(土日・祝日を除く)

ゲスト

浦和駅徒歩5分のダイニングバー居抜き物件のご案内です。

居抜き市場トップ 居抜き物件、貸店舗を探す JR京浜東北・根岸線 , さいたま市浦和区 浦和駅徒歩5分のダイニングバー居抜き物件情報

JR京浜東北・根岸線

浦和駅

徒歩5

所在地

さいたま市浦和区高砂・・・詳細は

浦和のダイニングバー居抜きの内装
浦和の居抜き店舗の内装

ログイン後に

物件情報の全てがご覧いただけます。

会員登録(無料)
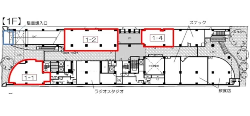
浦和の居抜き店舗の平面図

ログイン後に

物件情報の全てがご覧いただけます。

会員登録(無料)
浦和の居抜き店舗の外観

ログイン後に

物件情報の全てがご覧いただけます。

会員登録(無料)
浦和のダイニングバー居抜きの内装
浦和の居抜き店舗の内装
浦和の居抜き店舗の平面図
浦和の居抜き店舗の外観
賃料

1,159,125円(税込)

階数/面積

1F / 42.15坪 (139.35㎡)

敷金・保証金

6ヶ月分

造作代金

相談

飲食条件

飲食可

物件タイプ/現業態

居抜き / ダイニングバー

※会員限定の
情報
ございます。

会員限定の情報がございます。

会員登録(無料)をしていただくと、 物件詳細、物件資料のダウンロード、地図での立地確認など 会員限定の公開情報を閲覧・取得できるようになります。

会員登録(無料)

JR京浜東北線『浦和駅』徒歩5分、ダイニングバー居抜き物件のご紹介です。店内はカウンター席・ソファー席のある広々とした空間で、団体利用にも対応可能!旧中山道沿いの1階店舗で駅前から続く繁華街立地のため、平日・休日問わず集客が期待できます。他区画ではスケルトンテナントや美容室居抜きテナントも同時募集中ですので、お気軽にお問合せください。

物件概要

会員登録(無料)をすることで
物件情報の全てがご覧いただけます。

会員登録(無料)をしていただくと、他社には出回っていない物件情報の収集、
非会員の方には閲覧できない詳細情報、物件資料のダウンロード、
地図での立地確認など会員限定公開情報を閲覧・取得できるようになります。

会員登録(無料)

地図

会員登録後にご覧いただけます。

会員登録(無料)
×
区分
新着・未公開物件情報

登録で 会員規約プライバシーポリシー に同意したものとします。

※必須

会員登録(無料)
物件詳細や公開情報がご覧になれます!