北浦和駅徒歩4分の自由に造作が可能なスケルトン物件のご案内です。

ゲスト

営業時間:9:30~18:30(土日・祝日を除く)

ゲスト

北浦和駅徒歩4分の自由に造作が可能なスケルトン物件のご案内です。

居抜き市場トップ 居抜き物件、貸店舗を探す JR京浜東北・根岸線 , さいたま市浦和区 北浦和駅徒歩4分の自由に造作が可能なスケルトン物件詳細

JR京浜東北・根岸線

北浦和駅

徒歩4

所在地

さいたま市浦和区常盤・・・詳細は

北浦和のスケルトン店舗物件の外観
北浦和のスケルトン物件の周辺

ログイン後に

物件情報の全てがご覧いただけます。

会員登録(無料)
北浦和のスケルトン物件の内装

ログイン後に

物件情報の全てがご覧いただけます。

会員登録(無料)
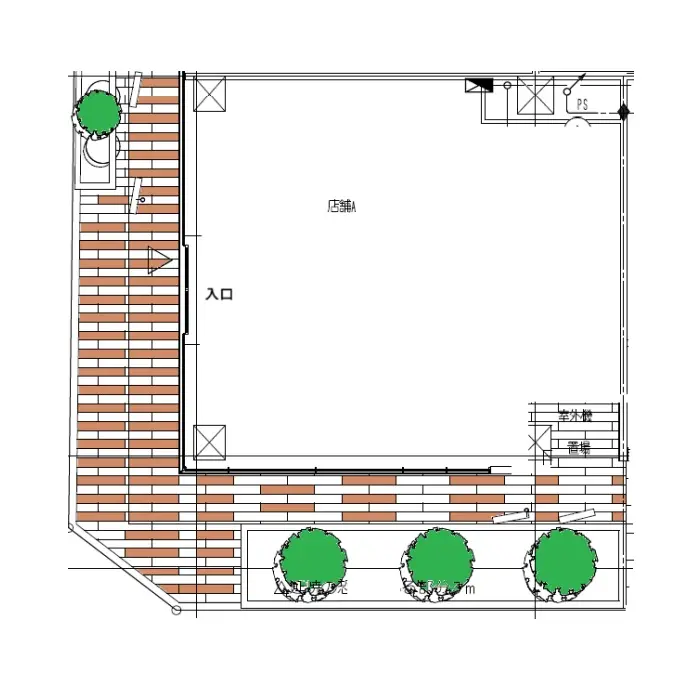
北浦和のスケルトン物件の平面図

ログイン後に

物件情報の全てがご覧いただけます。

会員登録(無料)
北浦和のスケルトン店舗物件の外観
北浦和のスケルトン物件の周辺
北浦和のスケルトン物件の内装
北浦和のスケルトン物件の平面図
賃料

473,000円(税込)

階数/面積

1F / 23.8坪 (78.69㎡)

敷金・保証金

6ヶ月分

飲食条件

飲食可

物件タイプ/現業態

スケルトン

※会員限定の
情報
ございます。

会員限定の情報がございます。

会員登録(無料)をしていただくと、 物件詳細、物件資料のダウンロード、地図での立地確認など 会員限定の公開情報を閲覧・取得できるようになります。

会員登録(無料)

JR京浜東北線『北浦和駅』徒歩4分、飲食店ご相談可能な貸店舗のご案内です。2025年8月築の前面ガラス張りデザイナーズ物件!県立近代美術館や伝統文化館を抱える「北浦和公園」のすぐ隣!近隣環境も非常に文化的で美しいです。デザイン自由度の高いスケルトン渡し。業種等お気軽にお問合せください。

物件概要

会員登録(無料)をすることで
物件情報の全てがご覧いただけます。

会員登録(無料)をしていただくと、他社には出回っていない物件情報の収集、
非会員の方には閲覧できない詳細情報、物件資料のダウンロード、
地図での立地確認など会員限定公開情報を閲覧・取得できるようになります。

会員登録(無料)

地図

会員登録後にご覧いただけます。

会員登録(無料)
×
区分
新着・未公開物件情報

登録で 会員規約プライバシーポリシー に同意したものとします。

※必須

会員登録(無料)
物件詳細や公開情報がご覧になれます!