大井競馬場前駅徒歩3分のスケルトン店舗物件のご案内です。

ゲスト

営業時間:9:30~18:30(土日・祝日を除く)

ゲスト

大井競馬場前駅徒歩3分のスケルトン店舗物件のご案内です。

居抜き市場トップ 居抜き物件、貸店舗を探す 東京モノレール , 品川区 大井競馬場前駅徒歩3分のスケルトン店舗物件詳細

東京モノレール

大井競馬場前駅

徒歩3

所在地

品川区勝島・・・詳細は

貸店舗(スケルトン)の外観
大井競馬場前のスケルトン物件の内装

ログイン後に

物件情報の全てがご覧いただけます。

会員登録(無料)
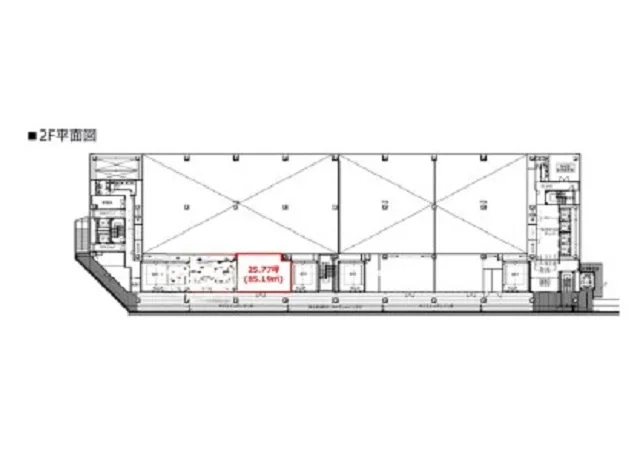
大井競馬場前のスケルトン店舗物件の平面図

ログイン後に

物件情報の全てがご覧いただけます。

会員登録(無料)
貸店舗(スケルトン)の外観
大井競馬場前のスケルトン物件の内装
大井競馬場前のスケルトン店舗物件の平面図
賃料

340,164円(税込)

階数/面積

2F / 25.76坪 (85.18㎡)

敷金・保証金

12ヶ月分

飲食条件

軽飲食可

物件タイプ/現業態

スケルトン

※会員限定の
情報
ございます。

会員限定の情報がございます。

会員登録(無料)をしていただくと、 物件詳細、物件資料のダウンロード、地図での立地確認など 会員限定の公開情報を閲覧・取得できるようになります。

会員登録(無料)

東京モノレール『⼤井競⾺場前駅』徒歩3分、飲食店ご相談可能な貸店舗のご案内です。内装レイアウト自由自在なスケルトンでの引渡しです。周辺には落ち着いたビジネスエリアが広がり、飲食店やコンビニエンスストアが点在しています。諸条件等、お気軽にお問合せください。

物件概要

会員登録(無料)をすることで
物件情報の全てがご覧いただけます。

会員登録(無料)をしていただくと、他社には出回っていない物件情報の収集、
非会員の方には閲覧できない詳細情報、物件資料のダウンロード、
地図での立地確認など会員限定公開情報を閲覧・取得できるようになります。

会員登録(無料)

地図

会員登録後にご覧いただけます。

会員登録(無料)
×
区分
新着・未公開物件情報

登録で 会員規約プライバシーポリシー に同意したものとします。

※必須

会員登録(無料)
物件詳細や公開情報がご覧になれます!