重飲食ができる大口駅徒歩4分の居抜き店舗のご案内です。

ゲスト

営業時間:9:30~18:30(土日・祝日を除く)

ゲスト

重飲食ができる大口駅徒歩4分の居抜き店舗のご案内です。

居抜き市場トップ 居抜き物件、貸店舗を探す JR横浜線 , 横浜市神奈川区 重飲食ができる大口駅徒歩4分の居抜き店舗情報

JR横浜線

大口駅

徒歩4

所在地

横浜市神奈川区大口仲町・・・詳細は

焼鳥・焼きとんの居抜き物件の内装
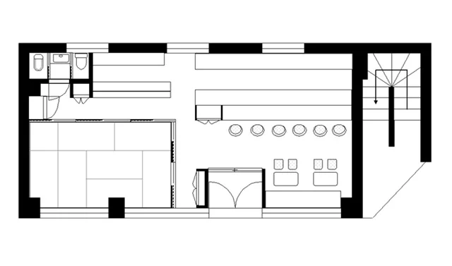
大口の焼鳥・焼きとん居抜きの平面図

ログイン後に

物件情報の全てがご覧いただけます。

会員登録(無料)
焼鳥・焼きとんの居抜き物件の外観

ログイン後に

物件情報の全てがご覧いただけます。

会員登録(無料)
焼鳥・焼きとんの居抜き物件の内装
大口の焼鳥・焼きとん居抜きの平面図
焼鳥・焼きとんの居抜き物件の外観
賃料

220,000円(税込)

階数/面積

1F / 21.55坪 (71.25㎡)

敷金・保証金

6ヶ月分

造作代金

相談

飲食条件

重飲食可

物件タイプ/現業態

居抜き / 焼鳥・焼きとん

※会員限定の
情報
ございます。

会員限定の情報がございます。

会員登録(無料)をしていただくと、 物件詳細、物件資料のダウンロード、地図での立地確認など 会員限定の公開情報を閲覧・取得できるようになります。

会員登録(無料)

JR横浜線『大口駅』徒歩4分、串焼き店居抜き物件のご紹介です。店内はカウンター席・テーブル席・座敷があり全40席のレイアウト!お一人様から団体客まで幅広く対応可能です。おおぐち通商店街の裏通りに位置しており、地域住民をはじめとした集客が期待できます。

物件概要

会員登録(無料)をすることで
物件情報の全てがご覧いただけます。

会員登録(無料)をしていただくと、他社には出回っていない物件情報の収集、
非会員の方には閲覧できない詳細情報、物件資料のダウンロード、
地図での立地確認など会員限定公開情報を閲覧・取得できるようになります。

会員登録(無料)

地図

会員登録後にご覧いただけます。

会員登録(無料)
×
区分
新着・未公開物件情報

登録で 会員規約プライバシーポリシー に同意したものとします。

※必須

会員登録(無料)
物件詳細や公開情報がご覧になれます!