築地駅徒歩6分の事務所仕様の物件のご案内です。

ゲスト

営業時間:9:30~18:30(土日・祝日を除く)

ゲスト

築地駅徒歩6分の事務所仕様の物件のご案内です。

居抜き市場トップ 居抜き物件、貸店舗を探す 東京メトロ日比谷線 , 中央区 築地駅徒歩6分の事務所仕様の物件情報

東京メトロ日比谷線

築地駅

徒歩6

所在地

中央区築地・・・詳細は

貸店舗(事務所仕様)の外観
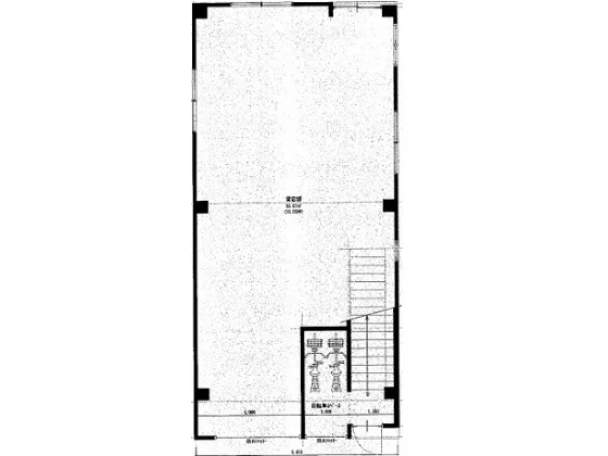
築地の事務所仕様店舗物件の平面図

ログイン後に

物件情報の全てがご覧いただけます。

会員登録(無料)
貸店舗(事務所仕様)の外観
築地の事務所仕様店舗物件の平面図
賃料

440,000円(税込)

階数/面積

1F / 18.05坪 (59.67㎡)

敷金・保証金

7ヶ月分

飲食条件

飲食可

物件タイプ/現業態

事務所仕様

※会員限定の
情報
ございます。

会員限定の情報がございます。

会員登録(無料)をしていただくと、 物件詳細、物件資料のダウンロード、地図での立地確認など 会員限定の公開情報を閲覧・取得できるようになります。

会員登録(無料)

東京メトロ日比谷線『築地駅』徒歩6分、飲食店ご相談可能な貸店舗のご案内です。下町らしい雰囲気があふれるエリアの1階貸しテナントで、周辺では住宅街のなかに老舗店舗が複数営業しております。築地エリアや下町情緒のある立地での出店をお考えの方におすすめです。詳細はレスタンダードまでお気軽にお問い合わせください!

物件概要

会員登録(無料)をすることで
物件情報の全てがご覧いただけます。

会員登録(無料)をしていただくと、他社には出回っていない物件情報の収集、
非会員の方には閲覧できない詳細情報、物件資料のダウンロード、
地図での立地確認など会員限定公開情報を閲覧・取得できるようになります。

会員登録(無料)

地図

会員登録後にご覧いただけます。

会員登録(無料)
×
区分
新着・未公開物件情報

登録で 会員規約プライバシーポリシー に同意したものとします。

※必須

会員登録(無料)
物件詳細や公開情報がご覧になれます!