錦糸町駅徒歩1分のスケルトン店舗物件のご案内です。

ゲスト

営業時間:9:30~18:30(土日・祝日を除く)

ゲスト

錦糸町駅徒歩1分のスケルトン店舗物件のご案内です。

居抜き市場トップ 居抜き物件、貸店舗を探す JR中央・総武線 , 墨田区 錦糸町駅徒歩1分のスケルトン店舗物件詳細

JR中央・総武線

錦糸町駅

徒歩1

所在地

墨田区江東橋・・・詳細は

錦糸町のスケルトン店舗物件の外観
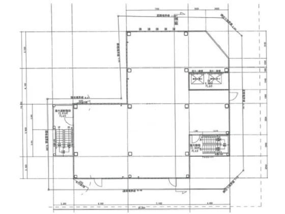
錦糸町のスケルトン店舗物件の平面図

ログイン後に

物件情報の全てがご覧いただけます。

会員登録(無料)
錦糸町のスケルトン店舗物件の外観
錦糸町のスケルトン店舗物件の平面図
賃料

2,811,600円(税込)

階数/面積

3F / 63.77坪 (210.81㎡)

敷金・保証金

10ヶ月分

飲食条件

飲食可

物件タイプ/現業態

スケルトン

※会員限定の
情報
ございます。

会員限定の情報がございます。

会員登録(無料)をしていただくと、 物件詳細、物件資料のダウンロード、地図での立地確認など 会員限定の公開情報を閲覧・取得できるようになります。

会員登録(無料)

JR総武線『錦糸町駅』徒歩1分、飲食店ご相談可能な貸店舗のご案内です。駅の南口を出るとすぐです!半蔵門線『錦糸町駅』からも徒歩4分。近隣には居酒屋、牛丼店、ファミレス等の飲食店が多数あり、集客が期待できます。3階のワンフロア貸し、エレベーター2基あります。業種等、お気軽にお問合せください。

物件概要

会員登録(無料)をすることで
物件情報の全てがご覧いただけます。

会員登録(無料)をしていただくと、他社には出回っていない物件情報の収集、
非会員の方には閲覧できない詳細情報、物件資料のダウンロード、
地図での立地確認など会員限定公開情報を閲覧・取得できるようになります。

会員登録(無料)

地図

会員登録後にご覧いただけます。

会員登録(無料)
×
区分
新着・未公開物件情報

登録で 会員規約プライバシーポリシー に同意したものとします。

※必須

会員登録(無料)
物件詳細や公開情報がご覧になれます!