重飲食可能な渋谷区渋谷にある地下-1階の居抜き物件のご案内です。

ゲスト

営業時間:9:30~18:30(土日・祝日を除く)

ゲスト

重飲食可能な渋谷区渋谷にある地下-1階の居抜き物件のご案内です。

居抜き市場トップ 居抜き物件、貸店舗を探す JR山手線 , 渋谷区 重飲食可能な渋谷区渋谷にある地下-1階の居抜き物件情報

JR山手線

渋谷駅

徒歩10

所在地

渋谷区渋谷・・・詳細は

渋谷の鉄板焼き居抜きの内装
渋谷の居抜き店舗の内装

ログイン後に

物件情報の全てがご覧いただけます。

会員登録(無料)
鉄板焼きの居抜き物件の厨房

ログイン後に

物件情報の全てがご覧いただけます。

会員登録(無料)
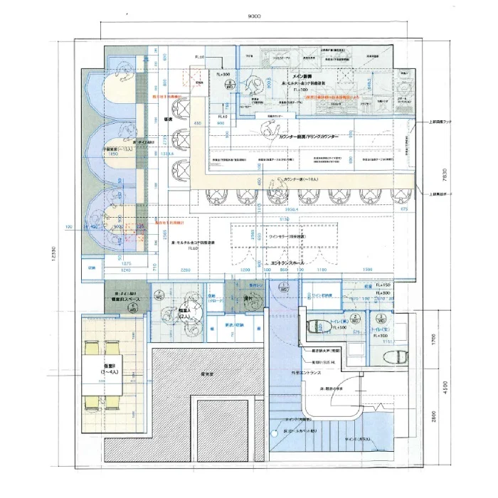
渋谷の居抜き店舗の平面図

ログイン後に

物件情報の全てがご覧いただけます。

会員登録(無料)
鉄板焼きの居抜き物件の厨房

ログイン後に

物件情報の全てがご覧いただけます。

会員登録(無料)
鉄板焼きの居抜き物件のエントランス

ログイン後に

物件情報の全てがご覧いただけます。

会員登録(無料)
渋谷の居抜き店舗の地図

ログイン後に

物件情報の全てがご覧いただけます。

会員登録(無料)
渋谷の居抜き店舗の厨房

ログイン後に

物件情報の全てがご覧いただけます。

会員登録(無料)
鉄板焼きの居抜き物件の厨房

ログイン後に

物件情報の全てがご覧いただけます。

会員登録(無料)
鉄板焼きの居抜き物件の内装

ログイン後に

物件情報の全てがご覧いただけます。

会員登録(無料)
渋谷の鉄板焼き居抜きの内装
渋谷の居抜き店舗の内装
鉄板焼きの居抜き物件の厨房
渋谷の居抜き店舗の平面図
鉄板焼きの居抜き物件の厨房
鉄板焼きの居抜き物件のエントランス
渋谷の居抜き店舗の地図
渋谷の居抜き店舗の厨房
鉄板焼きの居抜き物件の厨房
鉄板焼きの居抜き物件の内装
賃料

770,000円(税込)

階数/面積

-1F / 29.75坪 (98.34㎡)

敷金・保証金

10ヶ月分

造作代金

相談

飲食条件

重飲食可

物件タイプ/現業態

居抜き / 鉄板焼き

※会員限定の
情報
ございます。

会員限定の情報がございます。

会員登録(無料)をしていただくと、 物件詳細、物件資料のダウンロード、地図での立地確認など 会員限定の公開情報を閲覧・取得できるようになります。

会員登録(無料)

複数路線利用可能『渋谷駅』最寄り、鉄板焼き屋居抜き物件のご案内です。渋谷大通り沿いに専用階段あり、集客力期待大!内装美麗で、イタリアンやフレンチ等、類似のレストラン業態のお客様は必見です。諸条件等、お気軽にお問合せください。

物件概要

会員登録(無料)をすることで
物件情報の全てがご覧いただけます。

会員登録(無料)をしていただくと、他社には出回っていない物件情報の収集、
非会員の方には閲覧できない詳細情報、物件資料のダウンロード、
地図での立地確認など会員限定公開情報を閲覧・取得できるようになります。

会員登録(無料)

地図

会員登録後にご覧いただけます。

会員登録(無料)
×
区分
新着・未公開物件情報

登録で 会員規約プライバシーポリシー に同意したものとします。

※必須

会員登録(無料)
物件詳細や公開情報がご覧になれます!