天王町駅、重飲食可能な3階のスケルトン店舗物件のご案内です。

ゲスト

営業時間:9:30~18:30(土日・祝日を除く)

ゲスト

天王町駅、重飲食可能な3階のスケルトン店舗物件のご案内です。

居抜き市場トップ 居抜き物件、貸店舗を探す 相鉄本線 , 横浜市保土ケ谷区 天王町駅、重飲食可能な3階のスケルトン店舗物件情報

相鉄本線

天王町駅

徒歩5

所在地

横浜市保土ケ谷区天王町・・・詳細は

天王町のスケルトン物件の外観
天王町のスケルトン物件の外観

ログイン後に

物件情報の全てがご覧いただけます。

会員登録(無料)
天王町のスケルトン店舗物件の内装

ログイン後に

物件情報の全てがご覧いただけます。

会員登録(無料)
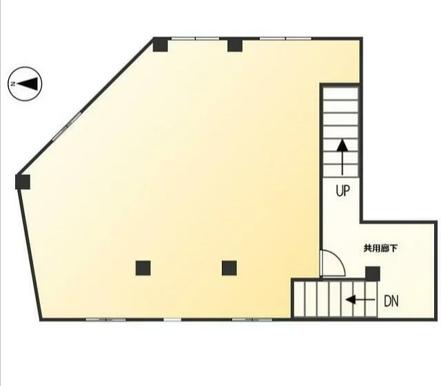
天王町のスケルトン物件の平面図

ログイン後に

物件情報の全てがご覧いただけます。

会員登録(無料)
天王町のスケルトン物件の外観
天王町のスケルトン物件の外観
天王町のスケルトン店舗物件の内装
天王町のスケルトン物件の平面図
賃料

119,000円(税込)

階数/面積

3F / 11.58坪 (38.3㎡)

敷金・保証金

50万円

飲食条件

重飲食可

物件タイプ/現業態

スケルトン

※会員限定の
情報
ございます。

会員限定の情報がございます。

会員登録(無料)をしていただくと、 物件詳細、物件資料のダウンロード、地図での立地確認など 会員限定の公開情報を閲覧・取得できるようになります。

会員登録(無料)

相鉄本線『天王町駅』徒歩5分、重飲食店可能な物件のご案内です。角地の最上階で、視認性良好な駅チカ物件!詳細はレスタンダード株式会社までお問合せください。

物件概要

会員登録(無料)をすることで
物件情報の全てがご覧いただけます。

会員登録(無料)をしていただくと、他社には出回っていない物件情報の収集、
非会員の方には閲覧できない詳細情報、物件資料のダウンロード、
地図での立地確認など会員限定公開情報を閲覧・取得できるようになります。

会員登録(無料)

地図

会員登録後にご覧いただけます。

会員登録(無料)
×
区分
新着・未公開物件情報

登録で 会員規約プライバシーポリシー に同意したものとします。

※必須

会員登録(無料)
物件詳細や公開情報がご覧になれます!