神泉駅徒歩3分のレストラン居抜き物件のご案内です。

ゲスト

営業時間:9:30~18:30(土日・祝日を除く)

ゲスト

神泉駅徒歩3分のレストラン居抜き物件のご案内です。

居抜き市場トップ 居抜き物件、貸店舗を探す 京王井の頭線 , 渋谷区 神泉駅徒歩3分のレストラン居抜き物件情報

京王井の頭線

神泉駅

徒歩3

所在地

渋谷区円山町・・・詳細は

レストランの居抜き物件の内装
神泉の居抜き店舗の外観

ログイン後に

物件情報の全てがご覧いただけます。

会員登録(無料)
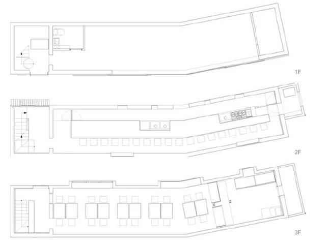
神泉の居抜き店舗の平面図

ログイン後に

物件情報の全てがご覧いただけます。

会員登録(無料)
レストランの居抜き物件の内装
神泉の居抜き店舗の外観
神泉の居抜き店舗の平面図
賃料

2,000,000円(税込)

階数/面積

-1F~2F / 41.52坪 (137.26㎡)

敷金・保証金

6ヶ月分

造作代金

相談

飲食条件

飲食可

物件タイプ/現業態

居抜き / レストラン

※会員限定の
情報
ございます。

会員限定の情報がございます。

会員登録(無料)をしていただくと、 物件詳細、物件資料のダウンロード、地図での立地確認など 会員限定の公開情報を閲覧・取得できるようになります。

会員登録(無料)
  • 路面店

京王井の頭線『神泉駅』徒歩3分、人気エリアからダイニングバーやレストランに最適な居抜き物件のご紹介です。店内はカウンタ席・テーブル席のあるレイアウト!大通りから少し入った隠れ家立地です。詳細はお問合せください。

物件概要

会員登録(無料)をすることで
物件情報の全てがご覧いただけます。

会員登録(無料)をしていただくと、他社には出回っていない物件情報の収集、
非会員の方には閲覧できない詳細情報、物件資料のダウンロード、
地図での立地確認など会員限定公開情報を閲覧・取得できるようになります。

会員登録(無料)

地図

会員登録後にご覧いただけます。

会員登録(無料)
×
区分
新着・未公開物件情報

登録で 会員規約プライバシーポリシー に同意したものとします。

※必須

会員登録(無料)
物件詳細や公開情報がご覧になれます!