東大島駅徒歩2分のスケルトン物件のご案内です。

ゲスト

営業時間:9:30~18:30(土日・祝日を除く)

ゲスト

東大島駅徒歩2分のスケルトン物件のご案内です。

居抜き市場トップ 居抜き物件、貸店舗を探す 都営新宿線 , 江東区 東大島駅徒歩2分のスケルトン物件情報

都営新宿線

東大島駅

徒歩2

所在地

江東区大島・・・詳細は

東大島のスケルトン店舗物件の外観
東大島のスケルトン店舗物件のその他

ログイン後に

物件情報の全てがご覧いただけます。

会員登録(無料)
東大島のスケルトン物件のその他

ログイン後に

物件情報の全てがご覧いただけます。

会員登録(無料)
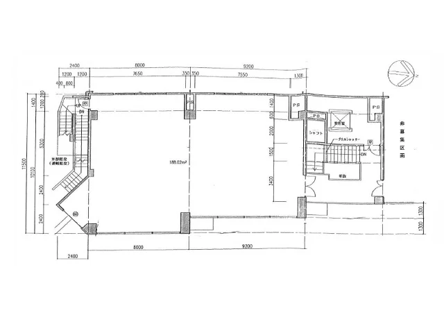
貸店舗(スケルトン)の平面図

ログイン後に

物件情報の全てがご覧いただけます。

会員登録(無料)
東大島のスケルトン店舗物件の外観
東大島のスケルトン店舗物件のその他
東大島のスケルトン物件のその他
貸店舗(スケルトン)の平面図
賃料

869,000円(税込)

階数/面積

2F / 56.87坪 (188.02㎡)

敷金・保証金

5ヶ月分

飲食条件

軽飲食可

物件タイプ/現業態

スケルトン

※会員限定の
情報
ございます。

会員限定の情報がございます。

会員登録(無料)をしていただくと、 物件詳細、物件資料のダウンロード、地図での立地確認など 会員限定の公開情報を閲覧・取得できるようになります。

会員登録(無料)

都営新宿線『東大島駅』徒歩2分、軽飲食店ご相談可能な貸店舗のご案内です。駅前の大通りに面したビル2階テナント!ガラス面大きく、バス停からの視認性もよい物件です。駅利用客中止に集客が見込めます。諸条件等、お気軽にお問合せください。

物件概要

会員登録(無料)をすることで
物件情報の全てがご覧いただけます。

会員登録(無料)をしていただくと、他社には出回っていない物件情報の収集、
非会員の方には閲覧できない詳細情報、物件資料のダウンロード、
地図での立地確認など会員限定公開情報を閲覧・取得できるようになります。

会員登録(無料)

地図

会員登録後にご覧いただけます。

会員登録(無料)
×
区分
新着・未公開物件情報

登録で 会員規約プライバシーポリシー に同意したものとします。

※必須

会員登録(無料)
物件詳細や公開情報がご覧になれます!