麹町駅徒歩1分の自由に造作が可能なスケルトン物件のご案内です。

ゲスト

営業時間:9:30~18:30(土日・祝日を除く)

ゲスト

麹町駅徒歩1分の自由に造作が可能なスケルトン物件のご案内です。

居抜き市場トップ 居抜き物件、貸店舗を探す 東京メトロ有楽町線 , 千代田区 麹町駅徒歩1分の自由に造作が可能なスケルトン物件詳細

東京メトロ有楽町線

麹町駅

徒歩1

所在地

千代田区麹町・・・詳細は

貸店舗(スケルトン)の外観
麹町のスケルトン物件の外観

ログイン後に

物件情報の全てがご覧いただけます。

会員登録(無料)
貸店舗(スケルトン)のその他

ログイン後に

物件情報の全てがご覧いただけます。

会員登録(無料)
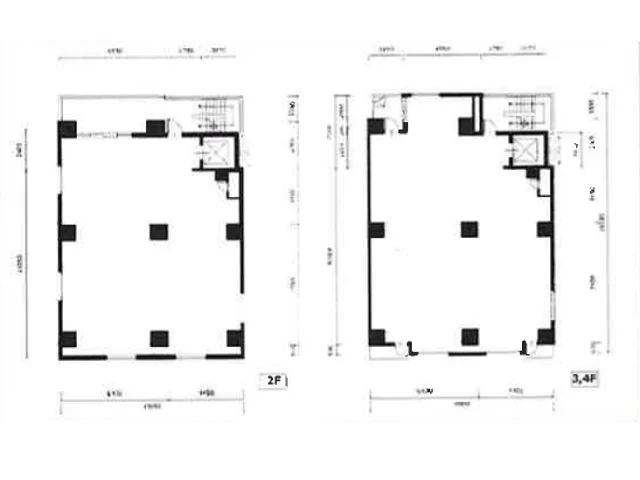
貸店舗(スケルトン)の平面図

ログイン後に

物件情報の全てがご覧いただけます。

会員登録(無料)
貸店舗(スケルトン)の外観
麹町のスケルトン物件の外観
貸店舗(スケルトン)のその他
貸店舗(スケルトン)の平面図
賃料

1,162,029円(税込)

階数/面積

3F~4F / 45.92坪 (151.83㎡)

敷金・保証金

8ヶ月分

飲食条件

軽飲食可

物件タイプ/現業態

スケルトン

※会員限定の
情報
ございます。

会員限定の情報がございます。

会員登録(無料)をしていただくと、 物件詳細、物件資料のダウンロード、地図での立地確認など 会員限定の公開情報を閲覧・取得できるようになります。

会員登録(無料)

東京メトロ有楽町線『麹町駅』徒歩1分、飲食業態ご相談可能な貸店舗のご案内です。大手飲食チェーン店も出店する「プリンス通り」沿いの2025年6月竣工の新築ビル3・4階で、ビジネスパーソンを中心とした集客が期待出来ます。飲食店のほか、サービス店の出店や事務所としての利用におすすめです。出店可能業態などの詳細はレスタンダードまでお問い合わせください。

物件概要

会員登録(無料)をすることで
物件情報の全てがご覧いただけます。

会員登録(無料)をしていただくと、他社には出回っていない物件情報の収集、
非会員の方には閲覧できない詳細情報、物件資料のダウンロード、
地図での立地確認など会員限定公開情報を閲覧・取得できるようになります。

会員登録(無料)

地図

会員登録後にご覧いただけます。

会員登録(無料)
×
区分
新着・未公開物件情報

登録で 会員規約プライバシーポリシー に同意したものとします。

※必須

会員登録(無料)
物件詳細や公開情報がご覧になれます!