道路に面した重飲食可能な1階の居抜き店舗のご案内です。

ゲスト

営業時間:9:30~18:30(土日・祝日を除く)

ゲスト

道路に面した重飲食可能な1階の居抜き店舗のご案内です。

居抜き市場トップ 居抜き物件、貸店舗を探す 京急久里浜線 , 三浦市 道路に面した重飲食可能な1階の居抜き店舗詳細

京急久里浜線

三浦海岸駅

徒歩2

所在地

三浦市南下浦町上宮田・・・詳細は

居酒屋の居抜き物件の内装
居酒屋の居抜き物件の内装

ログイン後に

物件情報の全てがご覧いただけます。

会員登録(無料)
居酒屋の居抜き物件の厨房

ログイン後に

物件情報の全てがご覧いただけます。

会員登録(無料)
居酒屋の居抜き物件の外観

ログイン後に

物件情報の全てがご覧いただけます。

会員登録(無料)
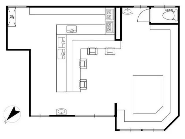
居酒屋の居抜き物件の平面図

ログイン後に

物件情報の全てがご覧いただけます。

会員登録(無料)
居酒屋の居抜き物件の内装
居酒屋の居抜き物件の内装
居酒屋の居抜き物件の厨房
居酒屋の居抜き物件の外観
居酒屋の居抜き物件の平面図
賃料

158,400円(税込)

階数/面積

1F / 9.98坪 (33㎡)

敷金・保証金

6ヶ月分

造作代金

相談

飲食条件

重飲食可

物件タイプ/現業態

居抜き / 居酒屋

※会員限定の
情報
ございます。

会員限定の情報がございます。

会員登録(無料)をしていただくと、 物件詳細、物件資料のダウンロード、地図での立地確認など 会員限定の公開情報を閲覧・取得できるようになります。

会員登録(無料)
  • 路面店
  • 値下げ

京急久里浜線『三浦海岸駅』徒歩2分、居酒屋居抜き物件のご紹介です。駅出入口向かいの飲食店が立ち並ぶ通りの一画に立地しており、地域住民や観光客などの集客が期待できます。出店可能業態などの詳細につきましては、レスタンダードまでお気軽にお問い合わせください。

物件概要

会員登録(無料)をすることで
物件情報の全てがご覧いただけます。

会員登録(無料)をしていただくと、他社には出回っていない物件情報の収集、
非会員の方には閲覧できない詳細情報、物件資料のダウンロード、
地図での立地確認など会員限定公開情報を閲覧・取得できるようになります。

会員登録(無料)

地図

会員登録後にご覧いただけます。

会員登録(無料)
×
区分
新着・未公開物件情報

登録で 会員規約プライバシーポリシー に同意したものとします。

※必須

会員登録(無料)
物件詳細や公開情報がご覧になれます!