たまプラーザ駅徒歩3分のスケルトン店舗物件のご案内です。

ゲスト

営業時間:9:30~18:30(土日・祝日を除く)

ゲスト

たまプラーザ駅徒歩3分のスケルトン店舗物件のご案内です。

居抜き市場トップ 居抜き物件、貸店舗を探す 東急田園都市線 , 横浜市青葉区 たまプラーザ駅徒歩3分のスケルトン店舗物件詳細

東急田園都市線

たまプラーザ駅

徒歩3

所在地

横浜市青葉区美しが丘・・・詳細は

たまプラーザのスケルトン店舗物件の内装
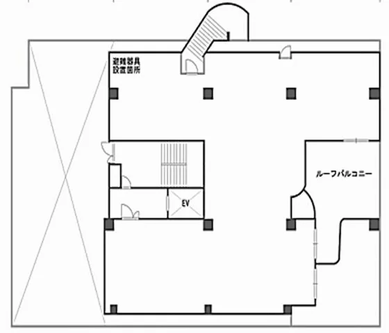
たまプラーザのスケルトン物件の平面図

ログイン後に

物件情報の全てがご覧いただけます。

会員登録(無料)
たまプラーザのスケルトン物件のエントランス

ログイン後に

物件情報の全てがご覧いただけます。

会員登録(無料)
たまプラーザのスケルトン店舗物件の内装
たまプラーザのスケルトン物件の平面図
たまプラーザのスケルトン物件のエントランス
賃料

1,210,000円(税込)

階数/面積

5F / 71.49坪 (236.36㎡)

敷金・保証金

6ヶ月分

飲食条件

飲食可

物件タイプ/現業態

スケルトン

※会員限定の
情報
ございます。

会員限定の情報がございます。

会員登録(無料)をしていただくと、 物件詳細、物件資料のダウンロード、地図での立地確認など 会員限定の公開情報を閲覧・取得できるようになります。

会員登録(無料)

東急田園都市線『たまプラーザ駅』から徒歩3分、ユリノキ通りに面する商業ビル最上階!飲食店相談可能な貸テナントのご紹介です。駅からの動線上に位置しており、仕事帰りのビジネスパーソンやファミリー層の利用も見込めます。諸条件等、お気軽にお問合せください。

物件概要

会員登録(無料)をすることで
物件情報の全てがご覧いただけます。

会員登録(無料)をしていただくと、他社には出回っていない物件情報の収集、
非会員の方には閲覧できない詳細情報、物件資料のダウンロード、
地図での立地確認など会員限定公開情報を閲覧・取得できるようになります。

会員登録(無料)

地図

会員登録後にご覧いただけます。

会員登録(無料)
×
区分
新着・未公開物件情報

登録で 会員規約プライバシーポリシー に同意したものとします。

※必須

会員登録(無料)
物件詳細や公開情報がご覧になれます!