成増駅徒歩6分の自由に造作が可能なスケルトン物件のご案内です。

ゲスト

営業時間:9:30~18:30(土日・祝日を除く)

ゲスト

成増駅徒歩6分の自由に造作が可能なスケルトン物件のご案内です。

居抜き市場トップ 居抜き物件、貸店舗を探す 東武東上線 , 板橋区 成増駅徒歩6分の自由に造作が可能なスケルトン物件詳細

東武東上線

成増駅

徒歩6

所在地

板橋区成増・・・詳細は

成増のスケルトン店舗物件の外観
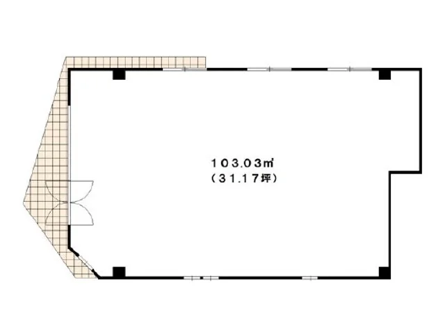
成増のスケルトン店舗物件の平面図

ログイン後に

物件情報の全てがご覧いただけます。

会員登録(無料)
成増のスケルトン店舗物件の外観
成増のスケルトン店舗物件の平面図
賃料

342,870円(税込)

階数/面積

1F / 31.16坪 (103.03㎡)

敷金・保証金

5ヶ月分

飲食条件

飲食可

物件タイプ/現業態

スケルトン

※会員限定の
情報
ございます。

会員限定の情報がございます。

会員登録(無料)をしていただくと、 物件詳細、物件資料のダウンロード、地図での立地確認など 会員限定の公開情報を閲覧・取得できるようになります。

会員登録(無料)

東武東上線『成増駅』徒歩6分、飲食店ご相談可能な貸店舗のご案内です。視認性良好な角地1階路面店!飲食店相談可能な貸テナントのご紹介です。直近ではコンビニエンスストアが営業していた店舗です。周辺は住宅街が広がっており、ファミリー層をはじめとした地域住民のリピーター獲得が期待できます。諸条件等、お気軽にお問合せください。

物件概要

会員登録(無料)をすることで
物件情報の全てがご覧いただけます。

会員登録(無料)をしていただくと、他社には出回っていない物件情報の収集、
非会員の方には閲覧できない詳細情報、物件資料のダウンロード、
地図での立地確認など会員限定公開情報を閲覧・取得できるようになります。

会員登録(無料)

地図

会員登録後にご覧いただけます。

会員登録(無料)
×
区分
新着・未公開物件情報

登録で 会員規約プライバシーポリシー に同意したものとします。

※必須

会員登録(無料)
物件詳細や公開情報がご覧になれます!