1階路面、豊島区要町のうどん・そば居抜き物件のご案内です。

ゲスト

営業時間:9:30~18:30(土日・祝日を除く)

ゲスト

1階路面、豊島区要町のうどん・そば居抜き物件のご案内です。

居抜き市場トップ 居抜き物件、貸店舗を探す 東京メトロ副都心線 , 豊島区 1階路面、豊島区要町のうどん・そば居抜き物件詳細

東京メトロ副都心線

千川駅

徒歩4

所在地

豊島区要町・・・詳細は

うどん・そばの居抜き物件の外観
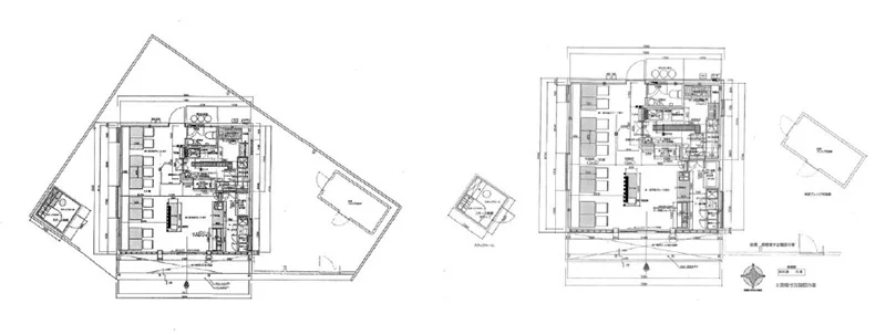
うどん・そばの居抜き物件の平面図

ログイン後に

物件情報の全てがご覧いただけます。

会員登録(無料)
うどん・そばの居抜き物件の外観
うどん・そばの居抜き物件の平面図
賃料

385,000円(税込)

階数/面積

1F / 14.97坪 (49.51㎡)

敷金・保証金

6ヶ月分

造作代金

無償譲渡

飲食条件

飲食可

物件タイプ/現業態

居抜き / うどん・そば

※会員限定の
情報
ございます。

会員限定の情報がございます。

会員登録(無料)をしていただくと、 物件詳細、物件資料のダウンロード、地図での立地確認など 会員限定の公開情報を閲覧・取得できるようになります。

会員登録(無料)
  • 路面店

東京メトロ副都心線『千川駅』徒歩4分、蕎麦屋居抜き物件のご紹介です。視認性良好な1階路面店!地域住民の生活動線上に位置しており、ビジネスパーソンやファミリー層のリピーター獲得が期待できます。諸条件等、お気軽にお問合せください。

物件概要

会員登録(無料)をすることで
物件情報の全てがご覧いただけます。

会員登録(無料)をしていただくと、他社には出回っていない物件情報の収集、
非会員の方には閲覧できない詳細情報、物件資料のダウンロード、
地図での立地確認など会員限定公開情報を閲覧・取得できるようになります。

会員登録(無料)

地図

会員登録後にご覧いただけます。

会員登録(無料)
×
区分
新着・未公開物件情報

登録で 会員規約プライバシーポリシー に同意したものとします。

※必須

会員登録(無料)
物件詳細や公開情報がご覧になれます!