道路に面した1階のスケルトン貸店舗・テナント物件のご案内です。

ゲスト

営業時間:9:30~18:30(土日・祝日を除く)

ゲスト

道路に面した1階のスケルトン貸店舗・テナント物件のご案内です。

居抜き市場トップ 居抜き物件、貸店舗を探す 東急東横線 , 世田谷区 道路に面した1階のスケルトン貸店舗・テナント物件詳細

東急東横線

学芸大学駅

徒歩6

所在地

世田谷区下馬・・・詳細は

学芸大学のスケルトン物件の外観
学芸大学のスケルトン物件の外観

ログイン後に

物件情報の全てがご覧いただけます。

会員登録(無料)
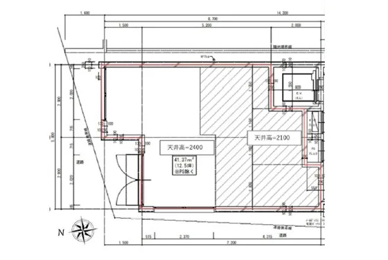
学芸大学のスケルトン物件の平面図

ログイン後に

物件情報の全てがご覧いただけます。

会員登録(無料)
学芸大学のスケルトン物件の外観
学芸大学のスケルトン物件の外観
学芸大学のスケルトン物件の平面図
賃料

462,000円(税込)

階数/面積

1F / 12.51坪 (41.37㎡)

敷金・保証金

5ヶ月分

飲食条件

軽飲食可

物件タイプ/現業態

スケルトン

※会員限定の
情報
ございます。

会員限定の情報がございます。

会員登録(無料)をしていただくと、 物件詳細、物件資料のダウンロード、地図での立地確認など 会員限定の公開情報を閲覧・取得できるようになります。

会員登録(無料)
  • 路面店

【新築】東急東横線『学芸大学駅』徒歩6分、カフェなど軽飲食相談可能な貸テナントのご紹介です。2025年8月竣工予定の新築スケルトン物件!視認性良好な1階路面店で地域住民の生活動線上に位置しており、落ち着いたエリアで開業をお考えの方におすすめです。美容サロン、物販店にもおすすめ!諸条件等、お気軽にお問合せください。

物件概要

会員登録(無料)をすることで
物件情報の全てがご覧いただけます。

会員登録(無料)をしていただくと、他社には出回っていない物件情報の収集、
非会員の方には閲覧できない詳細情報、物件資料のダウンロード、
地図での立地確認など会員限定公開情報を閲覧・取得できるようになります。

会員登録(無料)

地図

会員登録後にご覧いただけます。

会員登録(無料)
×
区分
新着・未公開物件情報

登録で 会員規約プライバシーポリシー に同意したものとします。

※必須

会員登録(無料)
物件詳細や公開情報がご覧になれます!