池袋駅徒歩3分のスケルトン物件のご案内です。

ゲスト

営業時間:9:30~18:30(土日・祝日を除く)

ゲスト

池袋駅徒歩3分のスケルトン物件のご案内です。

居抜き市場トップ 居抜き物件、貸店舗を探す 東京メトロ副都心線 , 豊島区 池袋駅徒歩3分のスケルトン物件情報

東京メトロ副都心線

池袋駅

徒歩3

所在地

豊島区西池袋・・・詳細は

池袋のスケルトン物件のエントランス
貸店舗(スケルトン)の外観

ログイン後に

物件情報の全てがご覧いただけます。

会員登録(無料)
貸店舗(スケルトン)の外観

ログイン後に

物件情報の全てがご覧いただけます。

会員登録(無料)
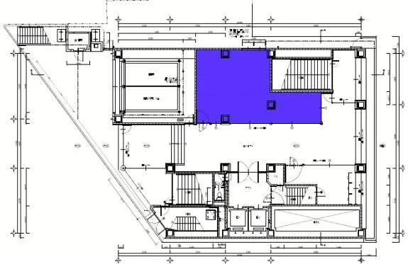
池袋のスケルトン店舗物件の平面図

ログイン後に

物件情報の全てがご覧いただけます。

会員登録(無料)
池袋のスケルトン物件のエントランス
貸店舗(スケルトン)の外観
貸店舗(スケルトン)の外観
池袋のスケルトン店舗物件の平面図
賃料

814,000円(税込)

階数/面積

1F / 20坪 (66.12㎡)

敷金・保証金

12ヶ月分

飲食条件

飲食可

物件タイプ/現業態

スケルトン

※会員限定の
情報
ございます。

会員限定の情報がございます。

会員登録(無料)をしていただくと、 物件詳細、物件資料のダウンロード、地図での立地確認など 会員限定の公開情報を閲覧・取得できるようになります。

会員登録(無料)

複数路線利用可能『池袋駅』地下鉄駅出口直結!飲食店ご相談可能な貸店舗のご案内です。内装レイアウト自由自在なスケルトンでの引渡しです。直近はラーメン店が営業していました。周辺は大手飲食チェーン店も出店する駅近好立地です。諸条件等、お気軽にお問合せください。

物件概要

会員登録(無料)をすることで
物件情報の全てがご覧いただけます。

会員登録(無料)をしていただくと、他社には出回っていない物件情報の収集、
非会員の方には閲覧できない詳細情報、物件資料のダウンロード、
地図での立地確認など会員限定公開情報を閲覧・取得できるようになります。

会員登録(無料)

地図

会員登録後にご覧いただけます。

会員登録(無料)
×
区分
新着・未公開物件情報

登録で 会員規約プライバシーポリシー に同意したものとします。

※必須

会員登録(無料)
物件詳細や公開情報がご覧になれます!