道路に面した1階のスケルトン貸店舗・テナント物件のご案内です。

ゲスト

営業時間:9:30~18:30(土日・祝日を除く)

ゲスト

道路に面した1階のスケルトン貸店舗・テナント物件のご案内です。

居抜き市場トップ 居抜き物件、貸店舗を探す JR京浜東北・根岸線 , さいたま市中央区 道路に面した1階のスケルトン貸店舗・テナント物件詳細

JR京浜東北・根岸線

与野駅

徒歩2

所在地

さいたま市中央区下落合・・・詳細は

与野のスケルトン店舗物件の内装
与野のスケルトン店舗物件の外観

ログイン後に

物件情報の全てがご覧いただけます。

会員登録(無料)
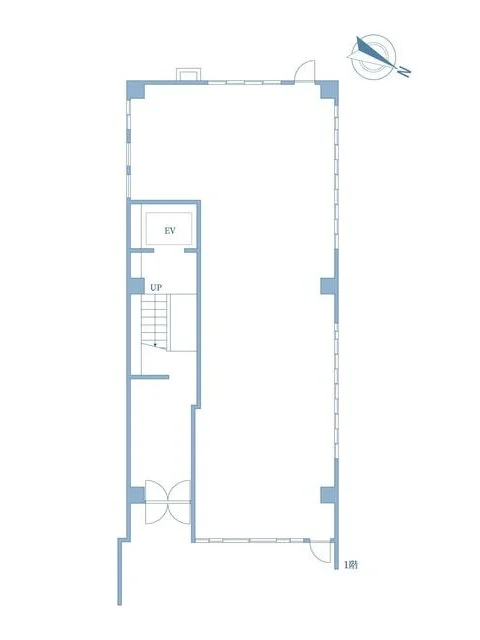
与野のスケルトン物件の平面図

ログイン後に

物件情報の全てがご覧いただけます。

会員登録(無料)
与野のスケルトン店舗物件の内装
与野のスケルトン店舗物件の外観
与野のスケルトン物件の平面図
賃料

352,900円(税込)

階数/面積

1F / 25.99坪 (85.92㎡)

敷金・保証金

962,700円

飲食条件

軽飲食可

物件タイプ/現業態

スケルトン

※会員限定の
情報
ございます。

会員限定の情報がございます。

会員登録(無料)をしていただくと、 物件詳細、物件資料のダウンロード、地図での立地確認など 会員限定の公開情報を閲覧・取得できるようになります。

会員登録(無料)
  • 路面店

JR『与野駅』徒歩2分、カフェ等の軽飲食ご相談可能な貸店舗のご紹介です。内装レイアウト自由自在なスケルトンでの引渡しです。駅北口から住宅街への帰宅動線上に位置し、人通りの多いエリア!ジムやクリニック等の開業にもおすすめです。諸条件等、お気軽にお問合せください。

物件概要

会員登録(無料)をすることで
物件情報の全てがご覧いただけます。

会員登録(無料)をしていただくと、他社には出回っていない物件情報の収集、
非会員の方には閲覧できない詳細情報、物件資料のダウンロード、
地図での立地確認など会員限定公開情報を閲覧・取得できるようになります。

会員登録(無料)

地図

会員登録後にご覧いただけます。

会員登録(無料)
×
区分
新着・未公開物件情報

登録で 会員規約プライバシーポリシー に同意したものとします。

※必須

会員登録(無料)
物件詳細や公開情報がご覧になれます!