港区六本木にある8階のBAR・ショットバー居抜き物件のご案内です。

ゲスト

営業時間:9:30~18:30(土日・祝日を除く)

ゲスト

港区六本木にある8階のBAR・ショットバー居抜き物件のご案内です。

居抜き市場トップ 居抜き物件、貸店舗を探す 東京メトロ日比谷線 , 港区 港区六本木にある8階のBAR・ショットバー居抜き物件詳細

東京メトロ日比谷線

六本木駅

徒歩1

所在地

港区六本木・・・詳細は

六本木のBAR・ショットバー居抜きの外観
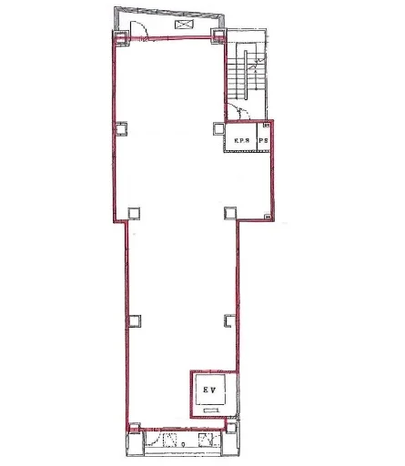
六本木の居抜き店舗の平面図

ログイン後に

物件情報の全てがご覧いただけます。

会員登録(無料)
六本木の居抜き店舗の地図

ログイン後に

物件情報の全てがご覧いただけます。

会員登録(無料)
六本木のBAR・ショットバー居抜きの外観
六本木の居抜き店舗の平面図
六本木の居抜き店舗の地図
賃料

1,160,500円(税込)

階数/面積

8F / 36.36坪 (120.21㎡)

敷金・保証金

10ヶ月分

造作代金

4,999,999円(税込)

飲食条件

飲食可

物件タイプ/現業態

居抜き / BAR・ショットバー

※会員限定の
情報
ございます。

会員限定の情報がございます。

会員登録(無料)をしていただくと、 物件詳細、物件資料のダウンロード、地図での立地確認など 会員限定の公開情報を閲覧・取得できるようになります。

会員登録(無料)

東京メトロ日比谷線『六本木駅』徒歩1分、バー居抜き物件のご紹介です。六本木交差点に近い「外苑東通り」に面する飲食ビルの8階区画!他フロアやビル周辺では各種飲食店が営業中で、昼夜人通りのあるエリアです。居抜きでの引き渡しですので類似業態での出店をお考えの方におすすめです。詳細はお問い合わせください。

物件概要

会員登録(無料)をすることで
物件情報の全てがご覧いただけます。

会員登録(無料)をしていただくと、他社には出回っていない物件情報の収集、
非会員の方には閲覧できない詳細情報、物件資料のダウンロード、
地図での立地確認など会員限定公開情報を閲覧・取得できるようになります。

会員登録(無料)

地図

会員登録後にご覧いただけます。

会員登録(無料)
×
区分
新着・未公開物件情報

登録で 会員規約プライバシーポリシー に同意したものとします。

※必須

会員登録(無料)
物件詳細や公開情報がご覧になれます!