道路に面した重飲食可能な1階のスケルトン店舗物件のご案内です。

ゲスト

営業時間:9:30~18:30(土日・祝日を除く)

ゲスト

道路に面した重飲食可能な1階のスケルトン店舗物件のご案内です。

居抜き市場トップ 居抜き物件、貸店舗を探す 東京メトロ銀座線 , 台東区 道路に面した重飲食可能な1階のスケルトン店舗物件詳細

東京メトロ銀座線

浅草駅

徒歩1

所在地

台東区雷門・・・詳細は

貸店舗(スケルトン)の内装
貸店舗(スケルトン)の外観

ログイン後に

物件情報の全てがご覧いただけます。

会員登録(無料)
浅草のスケルトン物件のエントランス

ログイン後に

物件情報の全てがご覧いただけます。

会員登録(無料)
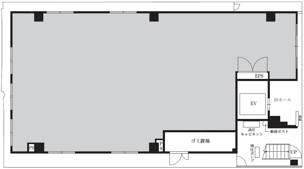
浅草のスケルトン物件の平面図

ログイン後に

物件情報の全てがご覧いただけます。

会員登録(無料)
貸店舗(スケルトン)の内装
貸店舗(スケルトン)の外観
浅草のスケルトン物件のエントランス
浅草のスケルトン物件の平面図
賃料

2,004,300円(税込)

階数/面積

1F / 45.55坪 (150.6㎡)

敷金・保証金

10ヶ月分

飲食条件

重飲食可

物件タイプ/現業態

スケルトン

※会員限定の
情報
ございます。

会員限定の情報がございます。

会員登録(無料)をしていただくと、 物件詳細、物件資料のダウンロード、地図での立地確認など 会員限定の公開情報を閲覧・取得できるようになります。

会員登録(無料)
  • 路面店

【新築】銀座線・浅草線『浅草駅』徒歩1分、重飲食ご相談可能な貸テナントのご紹介です。2025年1月竣工!視認性良好な江戸通り沿い1階路面店です。周辺で働くビジネスパーソンの集客が見込めます。諸条件等、お気軽にお問合せください。

物件概要

会員登録(無料)をすることで
物件情報の全てがご覧いただけます。

会員登録(無料)をしていただくと、他社には出回っていない物件情報の収集、
非会員の方には閲覧できない詳細情報、物件資料のダウンロード、
地図での立地確認など会員限定公開情報を閲覧・取得できるようになります。

会員登録(無料)

地図

会員登録後にご覧いただけます。

会員登録(無料)
×
区分
新着・未公開物件情報

登録で 会員規約プライバシーポリシー に同意したものとします。

※必須

会員登録(無料)
物件詳細や公開情報がご覧になれます!