経堂駅徒歩2分の飲食店居抜き店舗のご案内です。

ゲスト

営業時間:9:30~18:30(土日・祝日を除く)

ゲスト

経堂駅徒歩2分の飲食店居抜き店舗のご案内です。

居抜き市場トップ 居抜き物件、貸店舗を探す 小田急小田原線 , 世田谷区 経堂駅徒歩2分の飲食店居抜き店舗詳細

小田急小田原線

経堂駅

徒歩2

所在地

世田谷区宮坂・・・詳細は

経堂の居抜き店舗の内装
セントラルキッチンの居抜き物件の内装

ログイン後に

物件情報の全てがご覧いただけます。

会員登録(無料)
セントラルキッチンの居抜き物件の外観

ログイン後に

物件情報の全てがご覧いただけます。

会員登録(無料)
経堂のセントラルキッチン居抜きの外観

ログイン後に

物件情報の全てがご覧いただけます。

会員登録(無料)
セントラルキッチンの居抜き物件の地図

ログイン後に

物件情報の全てがご覧いただけます。

会員登録(無料)
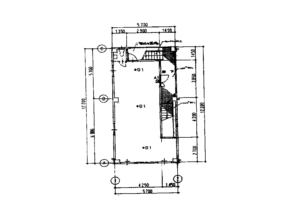
経堂の居抜き店舗の平面図

ログイン後に

物件情報の全てがご覧いただけます。

会員登録(無料)
経堂の居抜き店舗の内装
セントラルキッチンの居抜き物件の内装
セントラルキッチンの居抜き物件の外観
経堂のセントラルキッチン居抜きの外観
セントラルキッチンの居抜き物件の地図
経堂の居抜き店舗の平面図
賃料

297,000円(税込)

階数/面積

2F / 15.59坪 (51.57㎡)

敷金・保証金

6ヶ月分

造作代金

1,100,000円(税込)

飲食条件

飲食可

物件タイプ/現業態

居抜き / セントラルキッチン

※会員限定の
情報
ございます。

会員限定の情報がございます。

会員登録(無料)をしていただくと、 物件詳細、物件資料のダウンロード、地図での立地確認など 会員限定の公開情報を閲覧・取得できるようになります。

会員登録(無料)

★駅徒歩2分 すずらん通り沿い セントラルキッチン居抜き

【インフラ】電灯:有    動力:有    ガス:4号メーター    水道:20mm
【厨房排気】有 /送風機
【空調】有 / 業務用
【グリスト】無
【席数】無
【天高】手前2640mm/奥2200mm
【トイレ】有 /ウォシュレット
【閉店理由】別事業専念  
【営業年数】約12年
【営業時間制限】特になし  
【不可業態】臭い、煙の強い業態(対策すれば相談可能)
【引渡状態】居抜き
【間口】約2.5m
※記載の店舗情報は正確性を保証するものではございません。

物件概要

会員登録(無料)をすることで
物件情報の全てがご覧いただけます。

会員登録(無料)をしていただくと、他社には出回っていない物件情報の収集、
非会員の方には閲覧できない詳細情報、物件資料のダウンロード、
地図での立地確認など会員限定公開情報を閲覧・取得できるようになります。

会員登録(無料)

地図

会員登録後にご覧いただけます。

会員登録(無料)
×
区分
新着・未公開物件情報

登録で 会員規約プライバシーポリシー に同意したものとします。

※必須

会員登録(無料)
物件詳細や公開情報がご覧になれます!