1階路面、世田谷区宮坂のカフェ・喫茶店居抜き物件のご案内です。

ゲスト

営業時間:9:30~18:30(土日・祝日を除く)

ゲスト

1階路面、世田谷区宮坂のカフェ・喫茶店居抜き物件のご案内です。

居抜き市場トップ 居抜き物件、貸店舗を探す 小田急小田原線 , 世田谷区 1階路面、世田谷区宮坂のカフェ・喫茶店居抜き物件詳細

小田急小田原線

経堂駅

徒歩2

所在地

世田谷区宮坂・・・詳細は

経堂の居抜き店舗の厨房
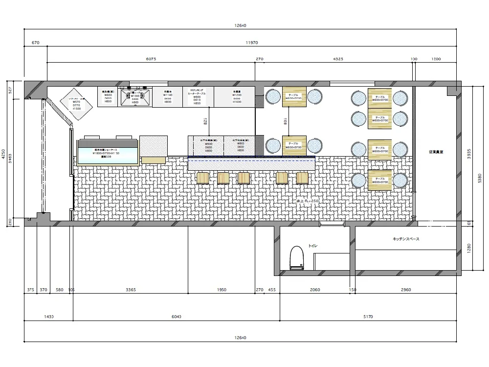
経堂の居抜き店舗の平面図

ログイン後に

物件情報の全てがご覧いただけます。

会員登録(無料)
経堂のカフェ・喫茶店居抜きの内装

ログイン後に

物件情報の全てがご覧いただけます。

会員登録(無料)
経堂のカフェ・喫茶店居抜きの内装

ログイン後に

物件情報の全てがご覧いただけます。

会員登録(無料)
経堂の居抜き店舗の厨房
経堂の居抜き店舗の平面図
経堂のカフェ・喫茶店居抜きの内装
経堂のカフェ・喫茶店居抜きの内装
賃料

451,000円(税込)

階数/面積

1F / 17.99坪 (59.5㎡)

敷金・保証金

6ヶ月分

造作代金

1,430,000円(税込)

飲食条件

飲食可

物件タイプ/現業態

居抜き / カフェ・喫茶店

※会員限定の
情報
ございます。

会員限定の情報がございます。

会員登録(無料)をしていただくと、 物件詳細、物件資料のダウンロード、地図での立地確認など 会員限定の公開情報を閲覧・取得できるようになります。

会員登録(無料)
  • 路面店

★視認性良好な1階路面店 すずらん通り沿い
★チェーン店だけでなく多くの個人商店も盛業する商店街
★1階カフェ、2階セントラルキッチン 同時募集中!

【インフラ】電灯:有    動力:有    ガス:6号メーター    水道:13mm
【厨房排気】有 /レンジフード
【空調】有 / 業務用
【グリスト】無
【席数】カウンター7席 テーブル10席 
【トイレ】有 /ウォシュレット
【閉店理由】別事業専念  
【営業年数】約12年
【営業時間制限】特になし  
【不可業態】臭い、煙の強い業態(対策すれば相談可能)
【引渡状態】居抜き
【間口】約3.5m
【天高】2660mm
※記載の店舗情報は正確性を保証するものではございません。

物件概要

会員登録(無料)をすることで
物件情報の全てがご覧いただけます。

会員登録(無料)をしていただくと、他社には出回っていない物件情報の収集、
非会員の方には閲覧できない詳細情報、物件資料のダウンロード、
地図での立地確認など会員限定公開情報を閲覧・取得できるようになります。

会員登録(無料)

地図

会員登録後にご覧いただけます。

会員登録(無料)
×
区分
新着・未公開物件情報

登録で 会員規約プライバシーポリシー に同意したものとします。

※必須

会員登録(無料)
物件詳細や公開情報がご覧になれます!