三ツ境駅徒歩5分のその他居抜き物件のご案内です。

ゲスト

営業時間:9:30~18:30(土日・祝日を除く)

ゲスト

三ツ境駅徒歩5分のその他居抜き物件のご案内です。

居抜き市場トップ 居抜き物件、貸店舗を探す 相鉄本線 , 横浜市瀬谷区 三ツ境駅徒歩5分のその他居抜き物件情報

相鉄本線

三ツ境駅

徒歩5

所在地

横浜市瀬谷区二ツ橋町・・・詳細は

三ツ境の居抜き店舗の外観
三ツ境の居抜き店舗の内装

ログイン後に

物件情報の全てがご覧いただけます。

会員登録(無料)
三ツ境の居抜き店舗の内装

ログイン後に

物件情報の全てがご覧いただけます。

会員登録(無料)
三ツ境の居抜き店舗の内装

ログイン後に

物件情報の全てがご覧いただけます。

会員登録(無料)
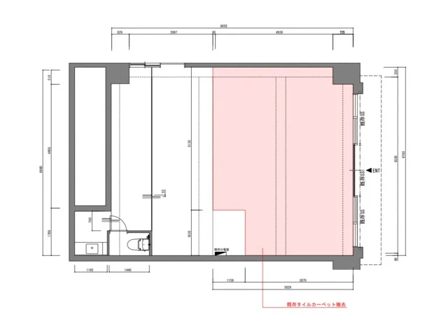
三ツ境の居抜き店舗の平面図

ログイン後に

物件情報の全てがご覧いただけます。

会員登録(無料)
三ツ境の居抜き店舗の外観
三ツ境の居抜き店舗の内装
三ツ境の居抜き店舗の内装
三ツ境の居抜き店舗の内装
三ツ境の居抜き店舗の平面図
賃料

352,000円(税込)

階数/面積

1F / 19.55坪 (64.64㎡)

敷金・保証金

6ヶ月分

造作代金

-

飲食条件

飲食可

物件タイプ/現業態

居抜き

※会員限定の
情報
ございます。

会員限定の情報がございます。

会員登録(無料)をしていただくと、 物件詳細、物件資料のダウンロード、地図での立地確認など 会員限定の公開情報を閲覧・取得できるようになります。

会員登録(無料)

相鉄本線『三ツ境駅』徒歩5分、軽飲食相談可能な貸テナントのご紹介です。隣区画ではファミリーレストランが営業中です。厚木街道に面した1階店舗!奥には住宅街が広がっており、近隣住民の集客が期待できます。諸条件等、お気軽にお問合せください。

物件概要

会員登録(無料)をすることで
物件情報の全てがご覧いただけます。

会員登録(無料)をしていただくと、他社には出回っていない物件情報の収集、
非会員の方には閲覧できない詳細情報、物件資料のダウンロード、
地図での立地確認など会員限定公開情報を閲覧・取得できるようになります。

会員登録(無料)

地図

会員登録後にご覧いただけます。

会員登録(無料)
×
区分
新着・未公開物件情報

登録で 会員規約プライバシーポリシー に同意したものとします。

※必須

会員登録(無料)
物件詳細や公開情報がご覧になれます!