1階路面、中央区日本橋馬喰町のスケルトン物件のご案内です。

ゲスト

営業時間:9:30~18:30(土日・祝日を除く)

ゲスト

1階路面、中央区日本橋馬喰町のスケルトン物件のご案内です。

居抜き市場トップ 居抜き物件、貸店舗を探す JR総武本線 , 中央区 1階路面、中央区日本橋馬喰町のスケルトン物件詳細

JR総武本線

馬喰町駅

徒歩1

所在地

中央区日本橋馬喰町・・・詳細は

馬喰町のスケルトン店舗物件の外観
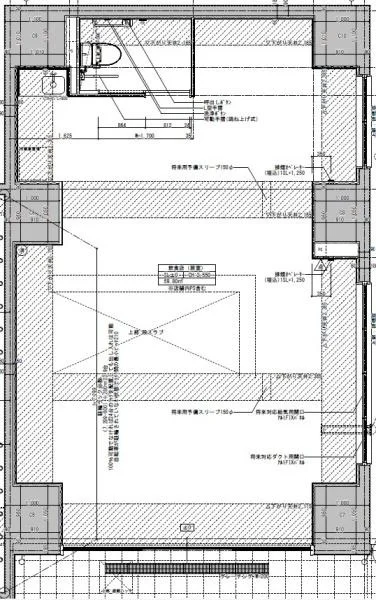
馬喰町のスケルトン店舗物件の平面図

ログイン後に

物件情報の全てがご覧いただけます。

会員登録(無料)
馬喰町のスケルトン物件のエントランス

ログイン後に

物件情報の全てがご覧いただけます。

会員登録(無料)
貸店舗(スケルトン)の外観

ログイン後に

物件情報の全てがご覧いただけます。

会員登録(無料)
馬喰町のスケルトン店舗物件の外観
馬喰町のスケルトン店舗物件の平面図
馬喰町のスケルトン物件のエントランス
貸店舗(スケルトン)の外観
賃料

440,000円(税込)

階数/面積

1F / 19.49坪 (64.44㎡)

敷金・保証金

6ヶ月分

飲食条件

飲食可(重飲食不可)

物件タイプ/現業態

スケルトン

※会員限定の
情報
ございます。

会員限定の情報がございます。

会員登録(無料)をしていただくと、 物件詳細、物件資料のダウンロード、地図での立地確認など 会員限定の公開情報を閲覧・取得できるようになります。

会員登録(無料)
  • 路面店

JR『馬喰町駅』徒歩1分、飲食店ご相談可能な貸店舗のご案内です。2025年3月に竣工した新築物件です。内装レイアウト自由自在なスケルトン、天井、壁はボード張り済での引渡しです。電灯・動力・ガス有り!諸条件等、お気軽にお問合せください。

物件概要

会員登録(無料)をすることで
物件情報の全てがご覧いただけます。

会員登録(無料)をしていただくと、他社には出回っていない物件情報の収集、
非会員の方には閲覧できない詳細情報、物件資料のダウンロード、
地図での立地確認など会員限定公開情報を閲覧・取得できるようになります。

会員登録(無料)

地図

会員登録後にご覧いただけます。

会員登録(無料)
×
区分
新着・未公開物件情報

登録で 会員規約プライバシーポリシー に同意したものとします。

※必須

会員登録(無料)
物件詳細や公開情報がご覧になれます!