港区芝浦にある1階の事務所仕様の貸店舗・テナント物件のご案内です。

ゲスト

営業時間:9:30~18:30(土日・祝日を除く)

ゲスト

港区芝浦にある1階の事務所仕様の貸店舗・テナント物件のご案内です。

居抜き市場トップ 居抜き物件、貸店舗を探す JR山手線 , 港区 港区芝浦にある1階の事務所仕様の貸店舗・テナント物件詳細

JR山手線

田町駅

徒歩1

所在地

港区芝浦・・・詳細は

田町の事務所仕様店舗物件の外観
田町の事務所仕様物件の内装

ログイン後に

物件情報の全てがご覧いただけます。

会員登録(無料)
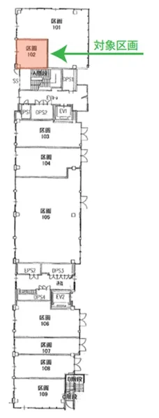
田町の事務所仕様物件の平面図

ログイン後に

物件情報の全てがご覧いただけます。

会員登録(無料)
田町の事務所仕様店舗物件の外観
田町の事務所仕様物件の内装
田町の事務所仕様物件の平面図
賃料

572,000円(税込)

階数/面積

1F / 6.48坪 (21.43㎡)

敷金・保証金

10ヶ月分

飲食条件

飲食可

物件タイプ/現業態

事務所仕様

※会員限定の
情報
ございます。

会員限定の情報がございます。

会員登録(無料)をしていただくと、 物件詳細、物件資料のダウンロード、地図での立地確認など 会員限定の公開情報を閲覧・取得できるようになります。

会員登録(無料)

JR『田町駅』直結のビル路面店!飲食店相談可能な貸テナントのご紹介です。以前は物販店として利用していました。他区画では中華料理店や蕎麦屋等の飲食店が営業中!駅近のため、駅利用者や周辺で働くオフィスワーカーの利用に期待できます。

物件概要

会員登録(無料)をすることで
物件情報の全てがご覧いただけます。

会員登録(無料)をしていただくと、他社には出回っていない物件情報の収集、
非会員の方には閲覧できない詳細情報、物件資料のダウンロード、
地図での立地確認など会員限定公開情報を閲覧・取得できるようになります。

会員登録(無料)

地図

会員登録後にご覧いただけます。

会員登録(無料)
×
区分
新着・未公開物件情報

登録で 会員規約プライバシーポリシー に同意したものとします。

※必須

会員登録(無料)
物件詳細や公開情報がご覧になれます!