橋本駅徒歩15分のラーメン居抜き物件のご案内です。

ゲスト

営業時間:9:30~18:30(土日・祝日を除く)

ゲスト

橋本駅徒歩15分のラーメン居抜き物件のご案内です。

居抜き市場トップ 居抜き物件、貸店舗を探す JR横浜線 , 相模原市緑区 橋本駅徒歩15分のラーメン居抜き物件情報

JR横浜線

橋本駅

徒歩15

所在地

相模原市緑区橋本・・・詳細は

橋本のラーメン居抜きの内装
橋本の居抜き店舗の内装

ログイン後に

物件情報の全てがご覧いただけます。

会員登録(無料)
橋本のラーメン居抜きの外観

ログイン後に

物件情報の全てがご覧いただけます。

会員登録(無料)
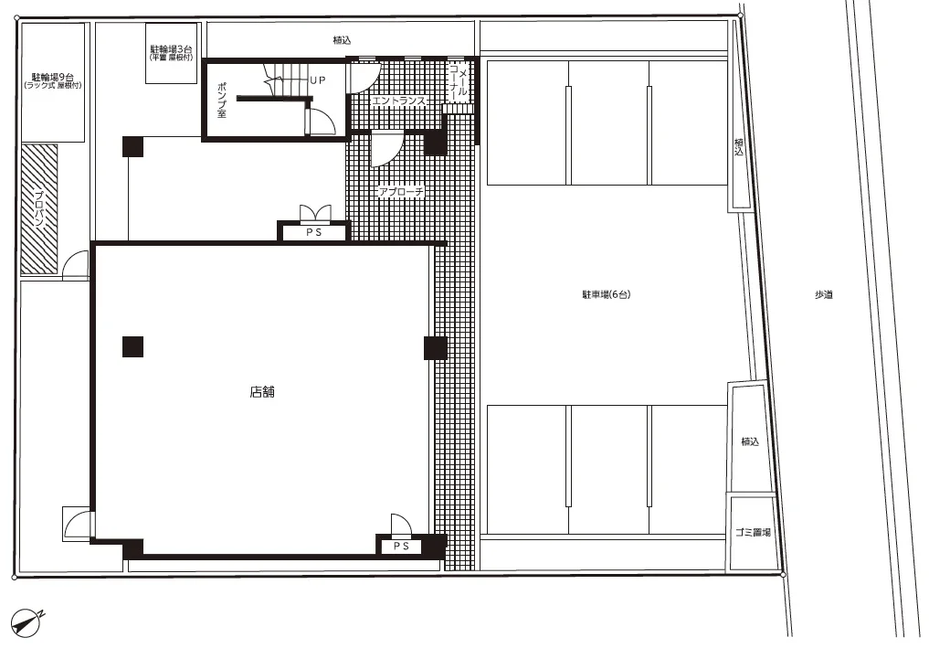
ラーメンの居抜き物件の平面図

ログイン後に

物件情報の全てがご覧いただけます。

会員登録(無料)
橋本のラーメン居抜きの内装
橋本の居抜き店舗の内装
橋本のラーメン居抜きの外観
ラーメンの居抜き物件の平面図
賃料

473,000円(税込)

階数/面積

1F / 28.42坪 (93.96㎡)

敷金・保証金

6ヶ月分

造作代金

相談

飲食条件

飲食可

物件タイプ/現業態

居抜き / ラーメン

※会員限定の
情報
ございます。

会員限定の情報がございます。

会員登録(無料)をしていただくと、 物件詳細、物件資料のダウンロード、地図での立地確認など 会員限定の公開情報を閲覧・取得できるようになります。

会員登録(無料)

JR『橋本駅』徒歩15分、県道沿いの視認性良好な路面店!ラーメン店居抜き物件のご案内です。店内は全35席レイアウトです。駐車場は6区画ございます。(1区画:月額賃料12,100円(税込))諸条件等、お気軽にお問合せください。

物件概要

会員登録(無料)をすることで
物件情報の全てがご覧いただけます。

会員登録(無料)をしていただくと、他社には出回っていない物件情報の収集、
非会員の方には閲覧できない詳細情報、物件資料のダウンロード、
地図での立地確認など会員限定公開情報を閲覧・取得できるようになります。

会員登録(無料)

地図

会員登録後にご覧いただけます。

会員登録(無料)
×
区分
新着・未公開物件情報

登録で 会員規約プライバシーポリシー に同意したものとします。

※必須

会員登録(無料)
物件詳細や公開情報がご覧になれます!