川口駅、重飲食可能な2階の居抜き店舗のご案内です。

ゲスト

営業時間:9:30~18:30(土日・祝日を除く)

ゲスト

川口駅、重飲食可能な2階の居抜き店舗のご案内です。

居抜き市場トップ 居抜き物件、貸店舗を探す JR京浜東北・根岸線 , 川口市 川口駅、重飲食可能な2階の居抜き店舗詳細

JR京浜東北・根岸線

川口駅

徒歩2

所在地

川口市栄町・・・詳細は

鉄板焼きの居抜き物件の内装
鉄板焼きの居抜き物件の内装

ログイン後に

物件情報の全てがご覧いただけます。

会員登録(無料)
川口の鉄板焼き居抜きの外観

ログイン後に

物件情報の全てがご覧いただけます。

会員登録(無料)
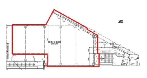
川口の居抜き店舗の平面図

ログイン後に

物件情報の全てがご覧いただけます。

会員登録(無料)
鉄板焼きの居抜き物件の内装
鉄板焼きの居抜き物件の内装
川口の鉄板焼き居抜きの外観
川口の居抜き店舗の平面図
賃料

1,566,675円(税込)

階数/面積

2F / 105.49坪 (348.76㎡)

敷金・保証金

8ヶ月分

造作代金

相談

飲食条件

重飲食可

物件タイプ/現業態

居抜き / 鉄板焼き

※会員限定の
情報
ございます。

会員限定の情報がございます。

会員登録(無料)をしていただくと、 物件詳細、物件資料のダウンロード、地図での立地確認など 会員限定の公開情報を閲覧・取得できるようになります。

会員登録(無料)

JR京浜東北・根岸線『川口駅』徒歩2分、駅前好立地から重飲食のご相談可能な貸テナントのご紹介です。以前は鉄板焼きダイニング店が営業していた店舗!駅前から続き人通りの多い産業道路に面したビル2階テナントで、昼夜問わず集客が期待できます。約91坪の広々とした店内は、大手チェーン店の出店をご検討の方にもおすすめです。

物件概要

会員登録(無料)をすることで
物件情報の全てがご覧いただけます。

会員登録(無料)をしていただくと、他社には出回っていない物件情報の収集、
非会員の方には閲覧できない詳細情報、物件資料のダウンロード、
地図での立地確認など会員限定公開情報を閲覧・取得できるようになります。

会員登録(無料)

地図

会員登録後にご覧いただけます。

会員登録(無料)
×
区分
新着・未公開物件情報

登録で 会員規約プライバシーポリシー に同意したものとします。

※必須

会員登録(無料)
物件詳細や公開情報がご覧になれます!