川崎市川崎区南町にある2階のスケルトン貸店舗・テナント物件のご案内です。

ゲスト

営業時間:9:30~18:30(土日・祝日を除く)

ゲスト

川崎市川崎区南町にある2階のスケルトン貸店舗・テナント物件のご案内です。

居抜き市場トップ 居抜き物件、貸店舗を探す JR京浜東北・根岸線 , 川崎市川崎区 川崎市川崎区南町にある2階のスケルトン貸店舗・テナント物件詳細

JR京浜東北・根岸線

川崎駅

徒歩10

所在地

川崎市川崎区南町・・・詳細は

貸店舗(スケルトン)の外観
貸店舗(スケルトン)の外観

ログイン後に

物件情報の全てがご覧いただけます。

会員登録(無料)
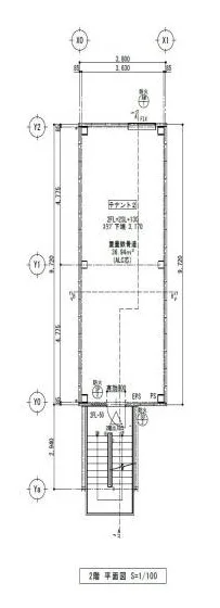
川崎のスケルトン店舗物件の平面図

ログイン後に

物件情報の全てがご覧いただけます。

会員登録(無料)
貸店舗(スケルトン)の外観
貸店舗(スケルトン)の外観
川崎のスケルトン店舗物件の平面図
賃料

209,000円(税込)

階数/面積

2F / 11.17坪 (36.94㎡)

敷金・保証金

6ヶ月分

飲食条件

飲食可

物件タイプ/現業態

スケルトン

※会員限定の
情報
ございます。

会員限定の情報がございます。

会員登録(無料)をしていただくと、 物件詳細、物件資料のダウンロード、地図での立地確認など 会員限定の公開情報を閲覧・取得できるようになります。

会員登録(無料)

JR各線『川崎駅』徒歩10分、重飲食相談可能な貸店舗のご紹介です。新川通りに面する視認性良好なビルの2階テナント!周辺はオフィスビルや住居も多く、ビジネスパーソンや近隣住民中心に集客が期待できます。3階も同時募集中ですのでお気軽にお問合せください。

物件概要

会員登録(無料)をすることで
物件情報の全てがご覧いただけます。

会員登録(無料)をしていただくと、他社には出回っていない物件情報の収集、
非会員の方には閲覧できない詳細情報、物件資料のダウンロード、
地図での立地確認など会員限定公開情報を閲覧・取得できるようになります。

会員登録(無料)

地図

会員登録後にご覧いただけます。

会員登録(無料)
×
区分
新着・未公開物件情報

登録で 会員規約プライバシーポリシー に同意したものとします。

※必須

会員登録(無料)
物件詳細や公開情報がご覧になれます!